

RE/MAX Wohnerlebnis Eislingen
Herr Timo Seidel
+49 ···
Nr. anzeigenPreise & Kosten
Provision für Käufer
4,76 inkl. MwSt.
Lage
Die Immobilie befindet sich im Ebersbacher Ortsteil Bünzwangen, einer ruhigen und gewachsenen Wohnlage von Ebersbach an der Fils. Der Ortsteil ist geprägt von Wohnhäusern, viel Grün und einer angenehmen dörflichen Struktur.
Ein Kindergarten sowie eine Grundschule befinden sich jeweils in ca. 0,3 km Entfernung. Die...
Das Haus
Kategorie
Mehrfamilienhaus
Baujahr
1905
Energie & Heizung
Warum sehe ich diese Anzeige? – Du siehst diese Anzeige basierend auf Ihrer Navigation auf unserer Website und den Suchkriterien, die du verwendet hast.
Energieausweistyp
Bedarfsausweis
Gebäudetyp
Wohngebäude
Baujahr laut Energieausweis
1988
Wesentliche Energieträger
OEL
Gültigkeit
bis 02.03.2036
Effizienzklasse
G
Endenergiebedarf
178,40 kWh/(m²·a)
Weitere Energiedaten
Energieträger
Holz, Öl
Heizungsart
Etagenheizung
Details
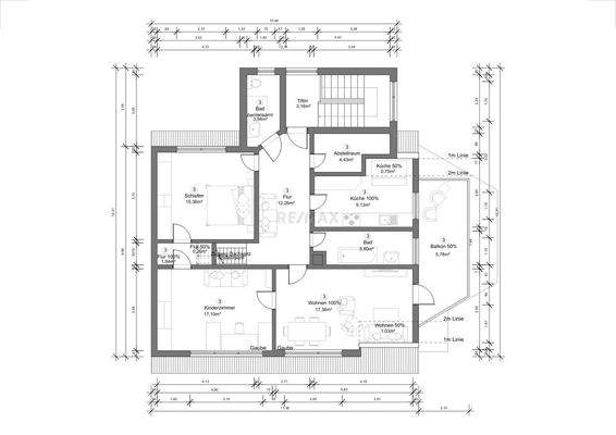
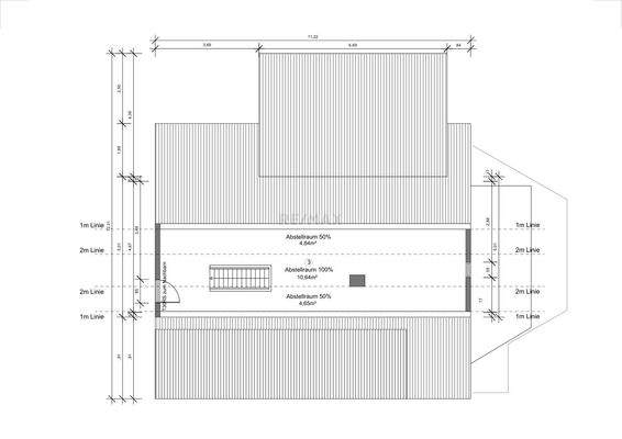
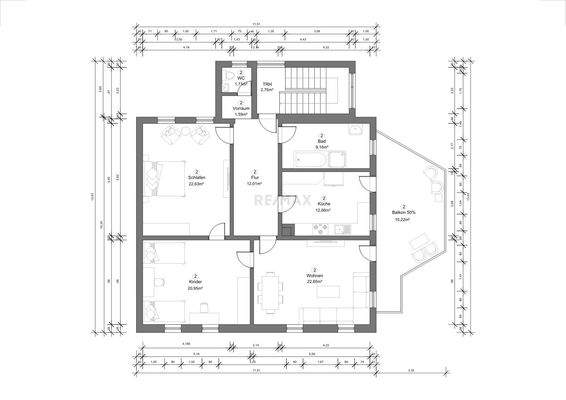
Objektbeschreibung
Dieses Angebot eröffnet interessante Möglichkeiten für Käufer mit Ideen und Visionen. Neben dem Wohnhaus am Ortsrand gehören auch ein Bauplatz sowie Grünflächen zu diesem Angebot. Diese Flächen werden gemeinsam mit dem Haus verkauft und sind mit einem zusätzlichen Kaufpreis von 179.000 € berücksichtigt. Das Haus bietet mit ca...
Ausstattung
. Großzügiges Grundstück mit ca. 2.479 m² Gesamtfläche
. Zusätzliches Baugrundstück mit Entwicklungspotenzial
. 2 Balkone und eine Terrasse vorhanden
. Teilunterkellertes Gebäude mit zusätzlicher Nutzfläche
Preisinformation
599.000 EUR + 179.000 EUR Bauplatz
Weitere Informationen
Sonstiges
Folgende Kosten sind im Kaufpreis nicht enthalten und vom Käufer zusätzlich zu entrichten: Notar- und Grundbuchkosten (ca. 2 %), Grunderwerbsteuer (5 %), und die mit der Finanzierung entstehenden Kosten. 4,76 % Maklerprovision inkl. gesetzlicher MwSt.. Ab dem Zeitpunkt der Übergabe hat der Käufer die Grundsteuer...
Anbieter der Immobilie

Online-ID: 2n2ns5y
Referenznummer: 1148-1220-TS
Finde Angebote wie dieses
Hier geht es zu unserem Impressum, den Allgemeinen Geschäftsbedingungen, den Hinweisen zum Datenschutz und nutzungsbasierter Online-Werbung.