
fundamentis GmbH
Andreas Wolf
085 ···
Nr. anzeigenPreise & Kosten
Provision für Käufer
provisionsfrei
Lage
Die Grundstücke befinden sich in dem Neubaugebiet "Donaublick II" im Markt Windorf.
Der Markt Windorf liegt in der Region Donau-Wald am nördlichen Ufer der Donau ca. 3 km flussabwärts von Vilshofen an der Donau, 20 km nordwestlich von Passau, 35 km südöstlich von Deggendorf und 7 km von der Bundesautobahn A3 (Ausfahrt...
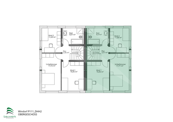
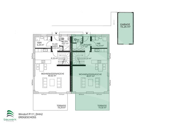
Das Haus
Kategorie
Doppelhaushälfte
Baujahr
2026
Bezug
nach Absprache
Energie & Heizung
Warum sehe ich diese Anzeige? – Du siehst diese Anzeige basierend auf Ihrer Navigation auf unserer Website und den Suchkriterien, die du verwendet hast.
Energieausweistyp
Bedarfsausweis
Gebäudetyp
Wohngebäude
Wesentliche Energieträger
Luftwärmepumpe
Gültigkeit
01.05.2023 bis 30.04.2033
Effizienzklasse
A
Endenergiebedarf
41,81 kWh/(m²·a)
Weitere Energiedaten
Heizungsart
Luft-/Wasser-Wärmepumpe
Details
Objektbeschreibung
Mit dieser neu erbauten Doppelhaushälfte erwartet Sie auf ca. 120 qm ein Wohlfühlhaus. Energieeffizientes Bauen mit ökologischen Baustoffen und gleichzeitig eine intelligente Konzeption mit durchdachten Grundrissen sind für uns die wichtigsten Grundsteine für ein nachhaltiges Projekt. Diese Philosophie wurde auch in diesem...
Ausstattung
Das können Sie von uns erwarten:
- verlässliche Betreuung und Überwachung vom Spatenstich bis zum Einzug
- anspruchsvolle Architektur zu einem fairen Preis-Leistungs-Verhältnis
- intelligente Energiekonzepte (KfW55 Effizienzhaus) und ökologische Baustoffe
- Ziegelmassivbauweise
- lichtdurchflutete Räume mit...
Preisinformation
2 Garagenstellplätze, Kaufpreis je: 20.000,00 EUR
Weitere Informationen
Stichworte
Garage vorhanden, Stellplatz vorhanden, Nutzfläche: 137,95 m², Anzahl der Schlafzimmer: 3, Anzahl der Badezimmer: 1, Anzahl Balkone: 1, Balkon-Terrassen-Fläche: 20,00 m², Bundesland: Bayern, 2 Etagen
Anbieter der Immobilie
fundamentis GmbH
Alte Straße 88, 94034 Passau
Online-ID: 2n2mk5l
Referenznummer: bauwerk.WH44_DHH4
Finde Angebote wie dieses
Hier geht es zu unserem Impressum, den Allgemeinen Geschäftsbedingungen, den Hinweisen zum Datenschutz und nutzungsbasierter Online-Werbung.