

KHC Bauträger GmbH
Frau Janet Schrepel
037 ···
Nr. anzeigenPreise & Kosten
Provision für Käufer
provisionsfrei
Lage
Das Grundstück befindet sich im Süden von Plauen in einer ruhigen Anliegerstraße. Die direkte Umgebung ist geprägt von Altbestand an Eigenheimen und Wald.
Das Haus
Kategorie
Einfamilienhaus
Baujahr
2026
Energie & Heizung
Warum sehe ich diese Anzeige? – Du siehst diese Anzeige basierend auf Ihrer Navigation auf unserer Website und den Suchkriterien, die du verwendet hast.
Energieausweistyp
Bedarfsausweis
Gebäudetyp
Wohngebäude
Baujahr laut Energieausweis
2026
Gültigkeit
seit 04.01.2016
Effizienzklasse
A+
Weitere Energiedaten
Heizungsart
Zentralheizung
Details
Objektbeschreibung
Das Familienhaus Jara bietet mit rund 140 m² Wohnraum für die ganze Familie. Es definiert Lebensfreude neu.
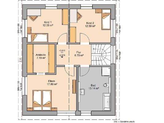
Das Erdgeschoss erstreckt sich über 70 m². Aufgeteilt ist es in einen großen Wohn- und Essbereich mit offener Küche und Speisekammer, ein WC, Diele und ein Home-Office, welches alternativ auch als Gästezimmer...
Ausstattung
5 Zimmer, offene Küche, Diele, WC, Flur, Bad, Ankleide, Speisekammer, Hauswirtschaftsraum
Das gezeigte Traumhaus im Überblick:
+ Massivhaus als Ausbauhaus im Sinne der Bau- und Ausstattungsbeschreibung "Paulo"
+ Gebäudehülle ist für Effizienzhaus 40 optimiert
+ Inklusive Bodenplatte
+ Architekten- und...
Weitere Informationen
Sonstiges
Kern-Haus
Kern-Haus baut individuelle und massive Architektenhäuser zu einem attraktiven Preis-Leistungs-Verhältnis - und das bereits mit einer Erfahrung seit 1980.
Maximale Sicherheit bei Kern-Haus:
+ 10 Jahre Gewährleistung auf die wesentlichen Bauleistungen
+ Bis zu 18 Monate...
Anbieter der Immobilie

Online-ID: 2n2lv5b
Referenznummer: KH 26_35
Finde Angebote wie dieses
Hier geht es zu unserem Impressum, den Allgemeinen Geschäftsbedingungen, den Hinweisen zum Datenschutz und nutzungsbasierter Online-Werbung.