
K. Eis Finanzhaus Deutschland GmbH
Josephin Dal Corso
017 ···
Nr. anzeigenPreise & Kosten
Provision für Käufer
3% Maklercourtage zuzüglich 19% MwSt
Lage
Lage & Lifestyle: Urbanes Wohnen in Düsseldorf-Flingern
Die Erkrather Straße liegt im begehrten Stadtteil Flingern, unmittelbar östlich der Düsseldorfer Innenstadt. In nur wenigen Minuten erreichen Sie die berühmte Königsallee, den Hauptbahnhof und das pulsierende Zentrum der Landeshauptstadt. Flingern zählt zu den...
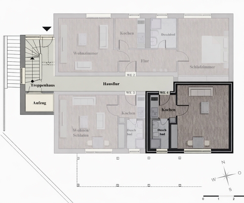
Die Wohnung
Wohnungslage
1. Geschoss
Bezug
sofort
Wohnanlage
Energie & Heizung
Warum sehe ich diese Anzeige? – Du siehst diese Anzeige basierend auf Ihrer Navigation auf unserer Website und den Suchkriterien, die du verwendet hast.
Energieausweistyp
Verbrauchsausweis
Gebäudetyp
Wohngebäude
Wesentliche Energieträger
Fernwärme
Gültigkeit
20.07.2022 bis 10.08.2033
Effizienzklasse
D
Weitere Energiedaten
Energieträger
Fernwärme
Details
Objektbeschreibung
Ein Objekt, drei Chancen
Ob als neues Zuhause für Eigennutzer, praktischer Standort für Pendler oder als wertstabile Kapitalanlage mit einer kalkulatorischen Mietrendite von ca. 4,76 %* - hier profitieren Sie von einer soliden Bausubstanz und langfristiger Planbarkeit.
Diese funktionale und nachgefragte 29,41 m²...
Ausstattung
- Gutachten zur Restnutzungsdauer von ca. 35 Jahren
- 2-fach verglaste Kunststofffenster zur Schall- und Wärmedämmung (Einbau 2025)
- Elektrische Rollläden (Einbau 2025)
- Erneuerte Heizungsrohre und moderne Heizkörper (2025)
- Video-Gegensprechanlage (Einbau 2025)
- moderner Aufzug (letzte Modernisierung...
Weitere Informationen
Sonstiges
Sanierungszustand & Angaben:
Bitte beachten Sie, dass sich die Wohnung aktuell in einem unrenovierten Zustand befindet; die beschriebene hochwertige Ausstattung bezieht sich auf das optionale Sanierungspaket. Sämtliche technische Angaben, Flächenmaße sowie Aussagen zur Restnutzungsdauer beruhen...
Anbieter der Immobilie
K. Eis Finanzhaus Deutschland GmbH
Hohe Warte 16, 45147 Essen
Online-ID: 2n2ky5l
Referenznummer: 2588
Finde Angebote wie dieses
Hier geht es zu unserem Impressum, den Allgemeinen Geschäftsbedingungen, den Hinweisen zum Datenschutz und nutzungsbasierter Online-Werbung.