

Immobilienberatung Rech
Herr Ralf Trauschold
021 ···
Nr. anzeigenPreise & Kosten
Verhandlungsbasis
Provision für Käufer
3% zuzügl 19% MwSt. Weitere Informationen siehe Provisionshinweis.
Lage
Das Objekt liegt ca. 150m vom Rheinberger Ortskern enfernt.
Geschäfte des täglichen Bedarfs liegen in unmittelbarer nähe zum Objekt.
Das Renditeobjekt
Kategorie
Wohn- und Geschäftshaus
Baujahr
1908
Bezug
nach Vereinbarung
Energie & Heizung
Warum sehe ich diese Anzeige? – Du siehst diese Anzeige basierend auf Ihrer Navigation auf unserer Website und den Suchkriterien, die du verwendet hast.
Wärme
Energieausweistyp
Bedarfsausweis
Gebäudetyp
Nicht-Wohngebäude
Wesentliche Energieträger
GAS
Gültigkeit
seit 30.11.2014
Endenergiebedarf (Wärme)
144,40 kWh/(m²·a)
Weitere Energiedaten
Energieträger
Gas
Heizungsart
Zentralheizung
Details
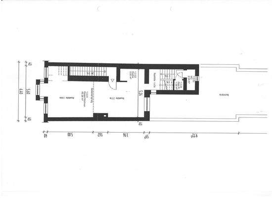
Objektbeschreibung
Eine außergewöhnliche Maisonette-Wohnung mitten in der Rheinberger Innenstadt.
Über eine lange Treppe erreichen Sie diese besondere Maisonette-Wohnung.
Der mit über 45m² angenehm große Wohn-Essbereich bildet das Herzstück der 1. Etage. Großzügige,helle Flächen und ein offener Kamin sorgen für ein behagliches...
Ausstattung
- offener Kamin im Wohnzimmer
- offene Küche
- kleines, hell gefliestes Duschbad
- separates WC
- kleiner Abstellraum mit Waschmaschinenanschluss
- großer Einbauschrank im Schlafzimmer
- kl. Abstellbereich am Schlafzimmer
- großer unbeheizter Raum im...
Weitere Informationen
Provisionshinweis
3% zuzügl 19% MwSt.
Wir weisen darauf hin, dass die vom Käufer zu zahlende Maklerprovision bei Zustandekommen eines notariellen Kaufvertrages durch unseren Nachweis beziehungsweise durch unsere Vermittlung 3,57% des Kaufpreises inklusive 19% MwSt. beträgt. Die Maklerprovision ist bei Abschluss des...
Anbieter der Immobilie
Immobilienberatung Rech
Feldburgweg 85, 47918 Tönisvorst

Online-ID: 2n2hn5u
Referenznummer: 123 9548
Finde Angebote wie dieses
Hier geht es zu unserem Impressum, den Allgemeinen Geschäftsbedingungen, den Hinweisen zum Datenschutz und nutzungsbasierter Online-Werbung.