

VR Bank Heilbronn Schwäbisch Hall eG
Frau Martina Heldmann
079 ···
Nr. anzeigenPreise & Kosten
Provision für Käufer
keine zusätzliche Käuferprovision
Lage
Das neue Wohngebiet "Heckenbühl" liegt südlich des Gewerbegebiets "Hofwiesen" in Roßfeld ca.
3 km westlich des Stadtzentrums Crailsheim. Die ausgezeichnete Infrastruktur bietet verschiedene Einkaufsmöglichkeiten, Apotheke, Ärzte, verschiedene Dienstleistungen im nahen Umkreis, alles zu Fuß oder mit dem Fahrrad erreichbar...
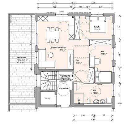
Die Wohnung
Kategorie
Penthouse
Wohnungslage
3. Geschoss
Bezug
Kurzfristig
Wohnanlage
Energie & Heizung
Warum sehe ich diese Anzeige? – Du siehst diese Anzeige basierend auf Ihrer Navigation auf unserer Website und den Suchkriterien, die du verwendet hast.
Energieausweistyp
Bedarfsausweis
Gebäudetyp
Wohngebäude
Baujahr laut Energieausweis
2024
Wesentliche Energieträger
FERN
Gültigkeit
bis 14.06.2034
Effizienzklasse
A+
Endenergiebedarf
28,70 kWh/(m²·a)
Weitere Energiedaten
Energieträger
Fernwärme
Heizungsart
Fußbodenheizung
Details
Objektbeschreibung
**Keine zusätzliche Käuferprovision**
Wir bieten Ihnen hier 13 attraktive Neubauwohnungen in einem Mehrfamilienhaus in Roßfeld zum Kauf an. Die Wohnungen sind alle sehr großzügig geschnitten und bieten somit viel Platz für individuelle Gestaltungsmöglichkeiten. Die Wohnungen ermöglichen auch im hohen Alter ein tolles...
Ausstattung
-5 Jahre Gewährleistung nach BGB ab Bauabnahme
-Klimafreundlicher Neubau QNG zertifiziert nach KfW40 NH mit zinsgünstigen Darlehen über die KfW (2,1 % gesichert)
-Heizungsart: Fernwärme
-Fußbodenheizung mit Einzelraumsteuerung
-Schallschutz nach DIN 4109
-Personenaufzug
-Videosprechanlage
-Dachterrasse...
Anbieter der Immobilie

Online-ID: 2n2ex5y
Referenznummer: 16931_13
Finde Angebote wie dieses
Hier geht es zu unserem Impressum, den Allgemeinen Geschäftsbedingungen, den Hinweisen zum Datenschutz und nutzungsbasierter Online-Werbung.