

Sparkasse Bad Tölz-Wolfratshausen
Herr Markus Schweiger
080 ···
Nr. anzeigenPreise & Kosten
Provision für Käufer
provisionsfrei
Lage
Zentrale Lage direkt am Karl-Lederer-Platz in Geretsried, maximaler Komfort, Sie fahren mit dem Lift zum Einkaufen! Auf dem Platz ist immer Leben, während Sie auf der Rückseite des Neubaus auf den Terrassen und Balkonen die Abendsonne in Ruhe genießen.
Die junge Stadt Geretsried liegt in einer der schönsten Regionen...
Die Wohnung
Wohnanlage
Energie & Heizung
Warum sehe ich diese Anzeige? – Du siehst diese Anzeige basierend auf Ihrer Navigation auf unserer Website und den Suchkriterien, die du verwendet hast.
Energieausweis: für diesen Gebäudetyp nicht notwendig
Weitere Energiedaten
Heizungsart
Fußbodenheizung
Details
Objektbeschreibung
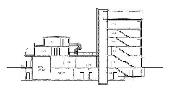
Neubau von barrierearmen 2 Zimmer Eigentumswohnungen (Wohnfläche ca. 64m² bis ca. 73m²), geplant von einem ortsansässigen, renommierten Architekturbüro, gebaut mit regionalen Handwerksbetrieben. Ideal für ein bequemes Leben im Zentrum!
Im Erdgeschoss steigen Sie vom Lift aus und sind mitten in der Einkaufszeile des...
Weitere Informationen
Sonstiges
So kommen Sie zu Ihrem Exposé:
Bitte teilen Sie uns Ihr Interesse über das Feld "Anbieter kontaktieren" mit. Anschließend erhalten Sie den Link zum Download des Exposés.
Für Terminvereinbarungen zur Besichtigung erreichen Sie uns unter 08171 - 8007 9111.
Vielen...
Anbieter der Immobilie

Online-ID: 2n2df5p
Referenznummer: 1/20/483-483/010039-9
Finde Angebote wie dieses
Hier geht es zu unserem Impressum, den Allgemeinen Geschäftsbedingungen, den Hinweisen zum Datenschutz und nutzungsbasierter Online-Werbung.