
CIC Castella Immo Concept GmbH
Herr Andreas Drexler
004 ···
Nr. anzeigenPreise & Kosten
Kaution
3.765,00
Warum sehe ich diese Anzeige? – Du siehst diese Anzeige basierend auf Ihrer Navigation auf unserer Website und den Suchkriterien, die du verwendet hast.
Lage
Die Immobilie liegt im Neudenauer Ortsteil Herbolzheim.
Die Stadt Neudenau mit ihren rund 5.200 Einwohnern liegt in landschaftlich herrlicher Umgebung im idyllischen Jagsttal zwischen Bad Friedrichshall und Möckmühl.
Erst 1975 kamen im Zuge der Gemeindereform die heutigen Ortsteile Herbolzheim, Siglingen...
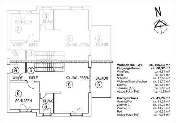
Die Wohnung
Kategorie
Maisonette
Wohnungslage
2. Geschoss
Bezug
nach Vereinbarung
Wohnanlage
Energie & Heizung
Warum sehe ich diese Anzeige? – Du siehst diese Anzeige basierend auf Ihrer Navigation auf unserer Website und den Suchkriterien, die du verwendet hast.
Energieausweistyp
Bedarfsausweis
Gebäudetyp
Wohngebäude
Baujahr laut Energieausweis
2021
Wesentliche Energieträger
ELEKTRO
Gültigkeit
bis 08.02.2031
Effizienzklasse
A+
Endenergiebedarf
17,00 kWh/(m²·a)
Weitere Energiedaten
Heizungsart
Luft-/Wasser-Wärmepumpe, Zentralheizung
Details
Objektbeschreibung
Leben in ruhiger Aussichtslage und den Arbeitgeber in Neckarsulm, Bad Wimpfen oder Heilbronn gleich um die Ecke - das bietet Ihnen diese Maisonette-Wohnung in Neudenau-Herbolzheim.
Damit trotz Hanglage der größtmögliche Wohnkomfort entsteht, wurde dieses 6-Familienhaus besonders konzipiert. Von den insgesamt vier...
Ausstattung
- Stufenloser Zugang mit einem Personenaufzug, welcher alle Wohnungen erreicht.
- KFW-Effizienzhaus 55 Standard
- Umweltfreundliche Luft-/Wärmepumpe
- Fußbodenheizung in allen Räumen
- Dezentrale Wohnraumbelüftung & -entlüftung
- Kunststofffenster mit 3-fach-Isolierverglasung
- Zwei Bäder mit stilvoller...
Preisinformation
2 Stellplätze
1 Garagenstellplatz
Weitere Informationen
Sonstiges
Für eine Bearbeitung Ihrer Anfrage bitten wir Sie, uns Ihre vollständigen Kontakt- und Adressdaten per Anfrage über ein Immobilienportal oder unsere Homepage zu übermitteln. Wir benötigen zwingend Ihre schriftliche Anfrage - bitte sehen Sie von einem Anruf ab.
Nehmen Sie bitte zusätzlich folgende...
Anbieter der Immobilie
CIC Castella Immo Concept GmbH
Faißtstraße 1, 74076 Heilbronn
Online-ID: 2n27q5g
Referenznummer: 490
Finde Angebote wie dieses
Hier geht es zu unserem Impressum, den Allgemeinen Geschäftsbedingungen, den Hinweisen zum Datenschutz und nutzungsbasierter Online-Werbung.