
LIPSIA-Fachberatungsbüro
Herr Michael Dornheim
017 ···
Nr. anzeigenPreise & Kosten
Provision für Käufer
3,57% inkl. MWSt. bezogen NUR auf den Grundstückspreis
Lage
Das Baugrundstück liegt im Nordwesten von Eilenburg in der Nähe der Klinik. Im Stadtgebiet befinden sich Grundschulen, eine Oberschule und ein Gymnasium. Mit nur 24 Kilometern von der Messestadt Leipzig entfernt und nahe der Dübener Heide lässt es sich gut arbeiten, wohnen und leben.
Das Haus
Kategorie
Einfamilienhaus
Energie & Heizung
Warum sehe ich diese Anzeige? – Du siehst diese Anzeige basierend auf Ihrer Navigation auf unserer Website und den Suchkriterien, die du verwendet hast.
Weitere Energiedaten
Haustyp
KfW 55
Heizungsart
Fußbodenheizung, Luft-/Wasser-Wärmepumpe, Zentralheizung
Details
Objektbeschreibung
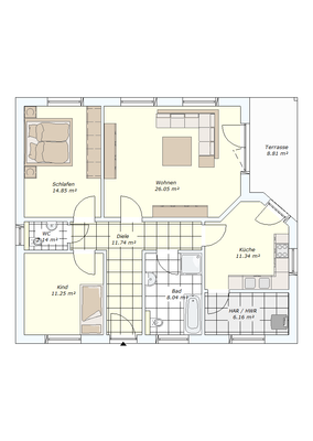
Das junge Paar mit einem Kind oder die „Silver-Ager“ mit dem Wunsch nach einem Gäste-Zimmer oder zwei Singles mit Bedarf an einem Arbeits-Zimmer – die Zielgruppe für unseren zweitkleinsten Bungalow ist sehr vielfältig. Aber alle eint das Ziel: Bloss keine winzigen Zimmer! Dem tragen wir mit diesem 100-qm-Entwurf Rechnung...
Weitere Informationen
Gern stellen wir Ihnen in einem persönlichen Gespräch weitere Bauplätze und alternative Hausplanungen auch an anderen Standorten vor. Über 2 Termin-Vorschläge (einer passt dann sicher auch bei uns) freuen wir uns!
Bitte haben Sie Verständnis, dass wir Anfragen nur bei vollständigen Angaben (mind. Name, Tel.-Nr....
Dokumente
Anbieter der Immobilie
Online-ID: 2n22r5z
Referenznummer: F 067
Finde Angebote wie dieses
Hier geht es zu unserem Impressum, den Allgemeinen Geschäftsbedingungen, den Hinweisen zum Datenschutz und nutzungsbasierter Online-Werbung.