

TEKCE Real Estate
Herr Özkan Tekçe
+34 ···
Nr. anzeigenPreise & Kosten
Provision für Käufer
Bitte beachte, das Angebot kann bei Vertragsabschluss die Zahlung einer Provision beinhalten. Weitere Informationen erhältst Du vom Anbieter.
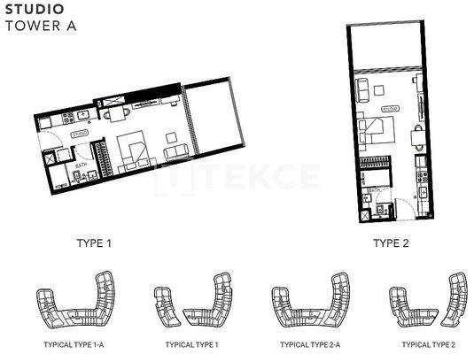
Die Wohnung
Wohnungslage
1. Geschoss
Bezug
TEKCE Real Estate
Wohnanlage
Details
Objektbeschreibung
Kurzbeschreibung
Wohnungen in Dubai in einem Hochhaus und mit Blick auf die Stadt bieten einfachen Zugang zu den beliebtesten Orten der Stadt. Die Wohnungen haben den Vorteil einer Ratenzahlungsmöglichkeit.
Objekt
Luxuswohnungen mit Ratenzahlungsmöglichkeit in der Region Al Barsha South
Das Projekt in Al...
Weitere Informationen
Stichworte
Stellplatz vorhanden, Nutzfläche: 70,00 m², Grundstücksfläche: 2.500,00 m², Ladenfläche: 70,00 m², Anzahl der Schlafzimmer: 1, Anzahl der Badezimmer: 2, Anzahl der Wohn-Schlafzimmer: 1, Bundesland: Al Barsha, 40 Etagen
Anbieter der Immobilie
TEKCE Real Estate
C/El Montículo 8, Benalmádena, 29631 MÁLAGA

Online-ID: 2myng5u
Referenznummer: DXB-00090-1-MiddleFloor
Finde Angebote wie dieses
Hier geht es zu unserem Impressum, den Allgemeinen Geschäftsbedingungen, den Hinweisen zum Datenschutz und nutzungsbasierter Online-Werbung.