
naturenergie hochrhein AG
Frau Christiane Pörtner
004 ···
Nr. anzeigenDieses Angebot ist Teil des Neubauprojekts
Quartier am Schlosspark
Preise & Kosten
Provision für Käufer
Bitte beachte, das Angebot kann bei Vertragsabschluss die Zahlung einer Provision beinhalten. Weitere Informationen erhältst Du vom Anbieter.
Lage
Ihr neues Zuhause befindet sich in der zentrumsnahen Prinz-Fritzi-Allee der rund 22.000 Einwohner großen Stadt Donaueschingen im malerischen Schwarzwald-Baar-Kreis. In der Nähe liegen größere Städte wie Villingen-Schwenningen, Tuttlingen, und das schweizerische Schaffhausen.
Donaueschingen, das seit 2022 den...
Die Wohnung
Wohnungslage
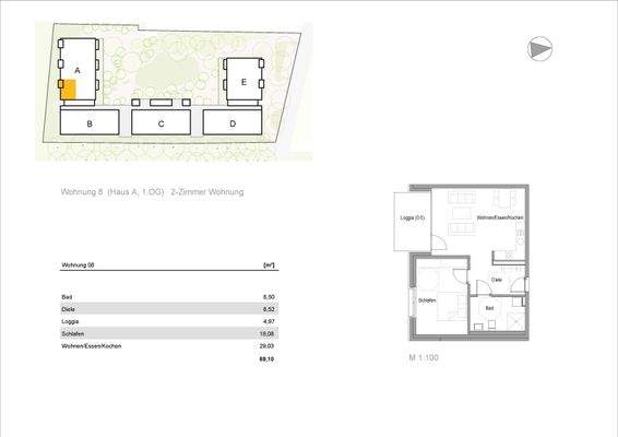
1. Geschoss
Wohnanlage
Das Neubauprojekt
Energie & Heizung
Warum sehe ich diese Anzeige? – Du siehst diese Anzeige basierend auf Ihrer Navigation auf unserer Website und den Suchkriterien, die du verwendet hast.
Energieausweistyp
Bedarfsausweis
Gebäudetyp
Wohngebäude
Wesentliche Energieträger
Fernwärme
Gültigkeit
seit 14.11.2024
Endenergiebedarf
42,60 kWh/(m²·a)
Weitere Energiedaten
Energieträger
Fernwärme
Haustyp
KfW 40
Heizungsart
Fußbodenheizung
Details
Objektbeschreibung
Kurzbeschreibung
Komfortabel Wohnen im Haus A
15 barrierefrei und uneingeschränkt mit dem Rollstuhl nutzbare Wohnungen nach DIN 18040-2 R mit Tagespflegeeinrichtung im Erdgeschoss.
Objekt
Das Quartier am Schlosspark bietet komfortables und selbstbestimmtes Wohnen für Senioren durch barrierefreie oder...
Ausstattung
Ihre Wohnung liegt im 1. Obergeschoss oberhalb der Tagespflegeeinrichtung und ist nach Süden ausgerichtet. Sie ist großzügig geschnitten und hat den Standard barrierefrei und uneingeschränkt mit dem Rollstuhl nutzbar nach 18040-2 R. Sie verfügt über 2 Zimmer, eine großzügige zum Teil überdachte Loggia und bietet Ihnen eine...
Weitere Informationen
Sonstiges
Die Tiefgarage des Quartiers bietet Ihnen komfortable Stellplätze mit moderner Ladeinfrastruktur für Ihr Elektroauto. Von dort gelangen Sie bequem und barrierefrei mit dem Aufzug zu Ihrer Wohnung. Zusätzlich steht Ihnen auf Wunsch das naturenergie Car Sharing Fahrzeug zur Verfügung - für flexible und nachhaltige...
Anbieter der Immobilie
naturenergie hochrhein AG
Schönenbergerstr. 10, 79618 Rheinfelden
Online-ID: 2myf25z
Referenznummer: 48-150
Finde Angebote wie dieses
Hier geht es zu unserem Impressum, den Allgemeinen Geschäftsbedingungen, den Hinweisen zum Datenschutz und nutzungsbasierter Online-Werbung.