
ohne-makler.net - Immobilien selbst vermarkten
Privat von Eric Architekt
Kontaktiere den Anbieter schriftlich, es ist keine Telefonnummer hinterlegt.
Preise & Kosten
Provision für Käufer
provisionsfrei
Lage
Das Grundstück liegt an begrünten Naturflächen und hat eine Süd-Ausrichtung, die bei dieser Bebauung große Vorteile bietet! z.B. Terrassen mit unverbaubarem Blick ins Grüne!!!!
Mit hohem Aufwand wurde die Fläche des Grundstücks in eine Ebene gebracht.
Die nach Erstellung des Gebäudes verbleibende Fläche ist eben, und...
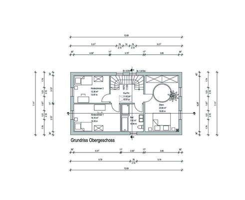
Das Haus
Kategorie
Einfamilienhaus
Baujahr
2024
Bezug
sofort
Energie & Heizung
Warum sehe ich diese Anzeige? – Du siehst diese Anzeige basierend auf Ihrer Navigation auf unserer Website und den Suchkriterien, die du verwendet hast.
Energieausweistyp
Bedarfsausweis
Gebäudetyp
Wohngebäude
Effizienzklasse
A
Endenergiebedarf
45,00 kWh/(m²·a)
Weitere Energiedaten
Heizungsart
Fußbodenheizung, Luft-/Wasser-Wärmepumpe
Details
Objektbeschreibung
Flammersfeld liegt an den Fernstraßen B 256 und L 272 und ist ein staatlich anerkannter
Erholungsort und gemäß der Landesplanung als Grundzentrum ausgewiesen.
Die A3 ist vom Ort in ca. 10 Minuten Fahrzeit, über die Anschlussstellen Neuwied / Altenkirchen, zu erreichen.
Weiterhin verkehren die beiden Buslinien im...
Ausstattung
Terrasse, Garten, Vollbad, Duschbad, Gäste-WC, Fliesen
Bemerkungen:
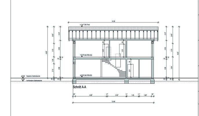
Massivbauweise 36,5 cm außen Mauerwerk, tragende und nicht tragende Innenwände aus Bims Mauerwerk, Bodenplatte und Decken Beton oder Stahlbeton Platten, Decke zum Dachgeschoß 40 cm gedämmt und isoliert , atmungsaktiv und ökologisch...
Preisinformation
2 Stellplätze
Weitere Informationen
Sonstiges
Heizungsart: Fußbodenheizung
Energieträger: Luft-/Wasserwärme
Stellplätze für min 2 Fahrzeuge sind vorhanden ( ebene Flächen )
Erstellung eines großen Carports möglich. ( für min 2 PKWs )
Platz für die Erstellung einer Doppel-Garage ist vorhanden.
ohne-makler (OM) ist weder Anbieter noch...
Dokumente
Anbieter der Immobilie
ohne-makler.net - Immobilien selbst vermarkten
Humboldtstr. 25 A, 21509 Glinde
Privat von Eric Architekt
Dein Ansprechpartner
Kontaktiere den Anbieter schriftlich, es ist keine Telefonnummer hinterlegt.
Online-ID: 2my495y
Referenznummer: 315442
Finde Angebote wie dieses
Hier geht es zu unserem Impressum, den Allgemeinen Geschäftsbedingungen, den Hinweisen zum Datenschutz und nutzungsbasierter Online-Werbung.