
PIPPING Immobilien GmbH & Co. KG
Herr Mika Leon Beyer
+49 ···
Nr. anzeigenPreise & Kosten
Provision für Käufer
3,125 % inkl. USt.
Lage
Gelegen in einer ruhigen und gepflegten Wohngegend am östlichen Stadtrand von Hamburg - im aufstrebenden Stapelfeld. Die Umgebung ist geprägt von einer harmonischen Mischung aus Einfamilienhäusern, Reihenhäusern und kleinen Mehrfamilienanlagen, die von viel Grün umgeben sind. Das Wohnumfeld vermittelt eine angenehme...
Die Wohnung
Kategorie
Maisonette
Wohnungslage
2. Geschoss
Wohnanlage
Energie & Heizung
Warum sehe ich diese Anzeige? – Du siehst diese Anzeige basierend auf Ihrer Navigation auf unserer Website und den Suchkriterien, die du verwendet hast.
Energieausweistyp
Verbrauchsausweis
Gebäudetyp
Wohngebäude
Baujahr laut Energieausweis
1973
Wesentliche Energieträger
Fernwärme
Gültigkeit
bis 05.02.2029
Effizienzklasse
D
Endenergieverbrauch
112,90 kWh/(m²·a)
Weitere Energiedaten
Energieträger
Fernwärme
Details
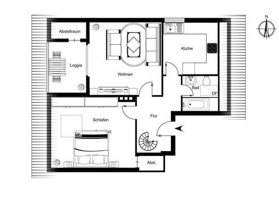
Objektbeschreibung
Die angebotene Maisonettewohnung befindet sich im Dachgeschoss einer im Jahre 1973 in Stapelfeld errichteten Wohnanlage, bestehend aus drei Hauseingängen und einer Tiefgarage.
Von außen präsentiert sich das Gebäudeensemble in klassischer Klinkerarchitektur und ist von einer liebevoll angelegten Grünanlage umgeben. Die...
Ausstattung
Beim Betreten der Wohnung gelangen Sie in den Eingangsereich, welcher ausreichend Platz für eine Garderobe zum Ablegen von Jacken & Co. beherbergt und von welchem sämtliche Räumlichkeiten zentral begehbar sind. Zudem befindet sich hier eine Wendeltreppe, über welche Sie den wohnlich augebauten Spitzboden...
Preisinformation
1 Tiefgaragenstellplatz
Anbieter der Immobilie
PIPPING Immobilien GmbH & Co. KG
Bahnhofstr. 12, 21465 Reinbek
Online-ID: 2mxl95k
Referenznummer: HR-2521012734
Finde Angebote wie dieses
Hier geht es zu unserem Impressum, den Allgemeinen Geschäftsbedingungen, den Hinweisen zum Datenschutz und nutzungsbasierter Online-Werbung.