

DAHLER Potsdam | Berlin-Wannsee | Kleinmachnow
Herr Kevin Manhardt
033 ···
Nr. anzeigenPreise & Kosten
Provision für Käufer
3.57% inkl. 19 % MwSt. bezogen auf den beurkundeten Kaufpreis
Lage
Your new apartment is located in Potsdam's northern city center, quietly nestled in a side street and just a few steps away from the baroque city center. The Neuer Garten park, which impressively surrounds the Heiligen See lake, is around five minutes' walk away. Cafés, restaurants and small manufactories are located in a...
Die Wohnung
Wohnungslage
2. Geschoss
Wohnanlage
Energie & Heizung
Warum sehe ich diese Anzeige? – Du siehst diese Anzeige basierend auf Ihrer Navigation auf unserer Website und den Suchkriterien, die du verwendet hast.
Energieausweistyp
Verbrauchsausweis
Gebäudetyp
Wohngebäude
Baujahr laut Energieausweis
1905
Wesentliche Energieträger
FERN
Gültigkeit
bis 29.02.2028
Effizienzklasse
C
Endenergieverbrauch
90,00 kWh/(m²·a)
Weitere Energiedaten
Energieträger
Fernwärme
Details
Objektbeschreibung
The apartment on offer here is located in the high-quality WITAM residential complex, built between 1904 and 1906 according to designs by architects A. Krause, Ludwig Otte, Edmund Rohde and Friedrich Rohde. The prestigious apartment buildings with their landscaped courtyards close the urban connection between the Berlin...
Ausstattung
. Listed residential complex from 1904-1906 with prestigious architecture
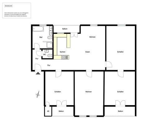
. Quiet old building floor on the 2nd floor with approx. 142 m² of living space
. Five clearly proportioned rooms with versatile usage options
. Three balconies, two of which enjoy the sun to the south with a view of the green courtyard of...
Weitere Informationen
Sonstiges
Your values are in the best hands with us
DAHLER specializes in the brokerage of high-quality residential properties in prime locations. Our company has been run by Kirsten and Björn Dahler for over 30 years and sets standards in the industry with its innovative strength and quality of service. Our more...
Anbieter der Immobilie

Online-ID: 2mvpu5z
Referenznummer: D-POT7976-ENG
Finde Angebote wie dieses
Hier geht es zu unserem Impressum, den Allgemeinen Geschäftsbedingungen, den Hinweisen zum Datenschutz und nutzungsbasierter Online-Werbung.