
WiREG - Wirtschaftsförderungs- und Regionalentwicklungsgesellschaft Flensburg/Schleswig mbH
Herr Temur Fayeq
004 ···
Nr. anzeigenPreise & Kosten
Provision für Käufer
provisionsfrei
Lage
Sörup ist ein ländlicher Zentralort in der Mitte Angelns. Zur Autobahn A7 (Anschluss Tarp) sind es 18 km, nach Flensburg 24 km, nach Schleswig 31 km. Sörup hat einen eigenen Bahnhof und liegt an der Strecke Kiel - Flensburg. Das Gewerbegebiet Schulstraße West liegt direkt am Ortseingang.
Die Versorgung der gut 4.300...
Das Grundstück
Kategorie
Gewerbe-Grundstück
Details
Objektbeschreibung
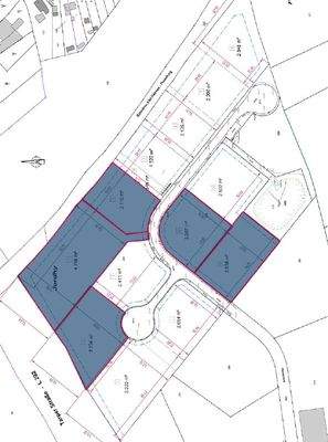
Im nordöstlichen Bereich des Gewerbegebiets Schulstraße West in Sörup wurden im Jahr 2019 rund 37.500 qm Erweiterungsflächen erschlossen.
Bei diesem Gewerbegebiet handelt es sich um ein mit öffentlichen Mitteln gefördertes Gebiet. Die Flächen sollen hauptsächlich an Unternehmen verkauft werden, die die entsprechenden...
Weitere Informationen
Sonstiges
*Es sind Preiszuschläge in Abhängigkeit der Grundstücksnutzung möglich. Nicht im Kaufpreis enthalten sind die Anschlusskosten für Strom-, Gas- und Frischwasserversorgung.
Alle Angaben in diesem Exposé basieren auf den vom Eigentümer zur Verfügung gestellten Informationen. Eine Haftung für deren Richtigkeit...
Anbieter der Immobilie
WiREG - Wirtschaftsförderungs- und Regionalentwicklungsgesellschaft Flensburg/Schleswig mbH
Lise-Meitner-Str. 2, 24941 Flensburg
Online-ID: 2mtws4e
Referenznummer: 10547
Finde Angebote wie dieses
Hier geht es zu unserem Impressum, den Allgemeinen Geschäftsbedingungen, den Hinweisen zum Datenschutz und nutzungsbasierter Online-Werbung.