
RICHERT & OERTEL IMMOBILIEN GMBH
Frau Jenny Völkel
035 ···
Nr. anzeigenPreise & Kosten
Provision für Käufer
3,57 % inkl. MwSt.
Lage
Die Wohnung befindet sich im beliebten Dresdner Stadtteil Striesen-Ost, einer der gefragtesten Wohnlagen der Stadt. Geprägt von grünen Alleen, ruhigen Seitenstraßen und einer sehr guten Infrastruktur, verbindet der Stadtteil angenehmes Wohnen mit urbaner Nähe. Einkaufsmöglichkeiten, Schulen, Kindergärten sowie zahlreiche...
Die Wohnung
Bezug
ab April 2026
Wohnanlage
Energie & Heizung
Warum sehe ich diese Anzeige? – Du siehst diese Anzeige basierend auf Ihrer Navigation auf unserer Website und den Suchkriterien, die du verwendet hast.
Energieausweistyp
Verbrauchsausweis
Gebäudetyp
Wohngebäude
Baujahr laut Energieausweis
2025
Gültigkeit
bis 15.06.2028
Effizienzklasse
C
Endenergieverbrauch
100,00 kWh/(m²·a)
Details
Objektbeschreibung
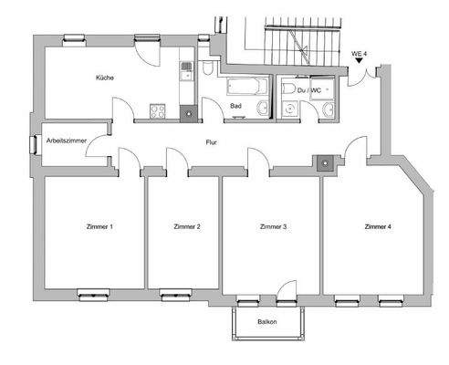
Zum Verkauf steht eine frisch renovierte 5-Zimmer-Eigentumswohnung mit Balkon in Striesen.
Ein Pkw-Außenstellplatz kann zusätzlich käuflich erworben werden.
Das Haus befindet sich in einem angenehmen Wohnumfeld und hat eine sehr gute Anbindung via ÖPNV.
Das Mehrfamilienhaus wurde erst vor Kurzem in...
Weitere Informationen
Sonstiges
Bei Abschluss eines notariellen Kaufvertrages hat der Käufer, sofern er im Rahmen einer gewerblichen Tätigkeit handelt, uns ein Honorar in Höhe von 6,96 % des Kaufpreises inkl. Mehrwertsteuer zu zahlen. Handelt der Käufer als Verbraucher gilt der Honorarsatz in Höhe von 3,57 % des Kaufpreises inkl...
Anbieter der Immobilie
RICHERT & OERTEL IMMOBILIEN GMBH
Tiergartenstraße 46, 01219 Dresden
Online-ID: 2mt6g5y
Referenznummer: R_O 23867
Finde Angebote wie dieses
Hier geht es zu unserem Impressum, den Allgemeinen Geschäftsbedingungen, den Hinweisen zum Datenschutz und nutzungsbasierter Online-Werbung.