
Reppe Immobilien GmbH
Herr Frank Reppe
+49 ···
Nr. anzeigenPreise & Kosten
Provision für Käufer
3,57 %
Lage
Der Ortsteil Ossel mit seinen 38 Einwohnern gehörte ursprünglich zum "Ländchen Wohla", welches sich aus den Weilern Ossel, Dobrig, Talpenberg, Boderitz, Welka und den Rittergütern Wohla und Rehnsdorf zusammensetzte. Die Dörfer schmiegen sich am Fuße vom Schwarzenberg, Kälberberg und Wohlaer Berg. Im Jahre 1950 wurden die Orte...
Das Haus
Kategorie
Einfamilienhaus
Details
Objektbeschreibung
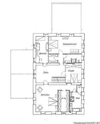
Zum Verkauf steht ein einmaliges Wohnensemble in wunderbar ruhiger Wohnlage. Das großzügige Gelände umfasst ca. 8.000 m² Fläche und verfügt über zwei Zufahrten. Bebaut ist es mit einem zweigeschossigen Wohnhaus und einem Nebengebäude mit Garagen, Werkstatt und Lagerflächen. Das Haus bietet ca. 305 m² Wohnfläche und zusätzlich...
Ausstattung
Durch eine aufwändige Sanierung gelang es den Eigentümern eine entspannte, großzügige und helle Wohnatmosphäre in diesem historischen Gebäude herzustellen. Sämtliche Wohnbereiche sind geschmackvoll gestaltet und in einem perfekten baulichen Zustand erhalten. Holz-Sprossenfenster, Parkettböden, schöne historische Öfen seien...
Weitere Informationen
Stichworte
Nutzfläche: 335,00 m²
Anbieter der Immobilie
Online-ID: 2mszr5b
Referenznummer: 3935
Finde Angebote wie dieses
Hier geht es zu unserem Impressum, den Allgemeinen Geschäftsbedingungen, den Hinweisen zum Datenschutz und nutzungsbasierter Online-Werbung.