
Metis GmbH
Herr René Arnold
004 ···
Nr. anzeigenPreise & Kosten
Provision für Käufer
provisionsfrei
Lage
Diese ansprechende Doppelhaushälfte befindet sich in einer begehrten Wohngegend von Norderstedt, eingebettet in eine familienfreundliche Umgebung mit einer ausgezeichneten Infrastruktur. Die Nachbarschaft zeichnet sich durch ihre Ruhe und die unmittelbare Nähe zu Grünflächen aus, was sie zu einem idealen Standort für Familien...
Das Haus
Kategorie
Doppelhaushälfte
Baujahr
2026
Energie & Heizung
Warum sehe ich diese Anzeige? – Du siehst diese Anzeige basierend auf Ihrer Navigation auf unserer Website und den Suchkriterien, die du verwendet hast.
Weitere Energiedaten
Haustyp
Massivhaus
Heizungsart
Fußbodenheizung, Luft-/Wasser-Wärmepumpe
Details
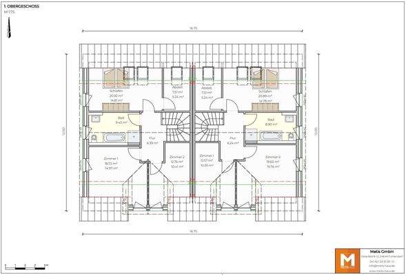
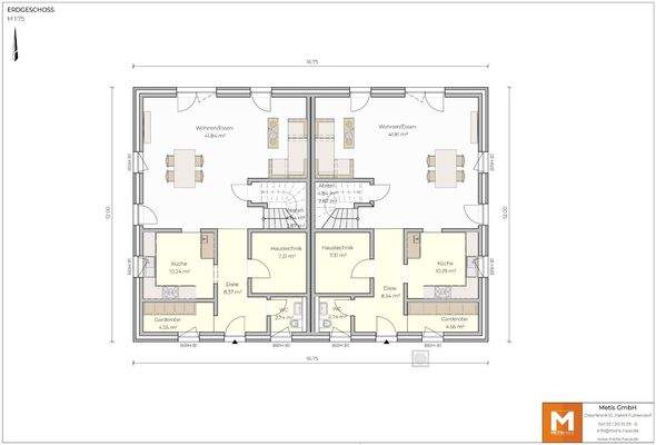
Objektbeschreibung
Diese moderne Doppelhaushälfte entsteht in einer der gefragtesten Wohnlagen von Norderstedt im beliebten Ortsteil Harksheide und kann im Jahr 2026 fertiggestellt werden. Die massive Bauweise, ein durchdachter Grundriss sowie eine zeitgemäße Ausstattung bilden die Basis für ein komfortables und nachhaltiges Zuhause.
Mit...
Ausstattung
Das ist bei METIS für Ihr KfW-55 Effizienzhaus immer inklusive
Mit METIS Haus profitieren Sie von einem Komplettpaket, das nicht nur modernste Bauweise, sondern auch höchste Energieeffizienz sicherstellt. Alles, was Sie für Ihr KfW-55 Traumhaus benötigen, ist bereits enthalten:
Sicherheit &...
Preisinformation
2 Stellplätze
Weitere Informationen
Sonstiges
Das hier dargestellte Haus ist nur ein Beispiel von vielen Möglichkeiten, die wir für dieses Grundstück anbieten können. Da wir jedes Projekt individuell gestalten, entwickeln wir Ihr Traumhaus gemeinsam mit Ihnen, passgenau auf Ihre Wünsche und Bedürfnisse zugeschnitten.
Bitte berücksichtigen Sie, dass im...
Anbieter der Immobilie
Metis GmbH
Osterfeld 8 -10, 24649 Fuhlendorf
Online-ID: 2mrmc5y
Referenznummer: 156-25
Finde Angebote wie dieses
Hier geht es zu unserem Impressum, den Allgemeinen Geschäftsbedingungen, den Hinweisen zum Datenschutz und nutzungsbasierter Online-Werbung.