
RUHR REAL GmbH
Herr Frederic Jeschke
+49 ···
Nr. anzeigenPreise & Kosten
Provision für Mieter
provisionsfrei
Warum sehe ich diese Anzeige? – Du siehst diese Anzeige basierend auf Ihrer Navigation auf unserer Website und den Suchkriterien, die du verwendet hast.
Lage
Die Liegenschaft befindet sich zentral im Stadtteil Wattenscheid, umgeben von Nahversorgung und Dienstleistungen. Eine Bushaltestelle ist in rund 2 Minuten zu Fuß erreichbar, der Hauptbahnhof von Bochum ist in ca. 14 Minuten befahren. Die A40 ist in wenigen Minuten erreichbar und bietet eine schnelle Anbindung in alle...
Büro-/Praxisfläche
Kategorie
Bürofläche
Bezug
nach Vereinbarung
Derzeitige Nutzung
frei
Energie & Heizung
Warum sehe ich diese Anzeige? – Du siehst diese Anzeige basierend auf Ihrer Navigation auf unserer Website und den Suchkriterien, die du verwendet hast.
Weitere Energiedaten
Energieträger
Gas
Details
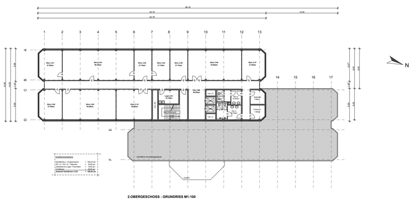
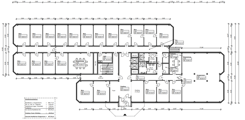
Objektbeschreibung
Die Büroimmobilie überzeugt durch ihre moderne, funktionale Ausstattung sowie helle, großzügige Fensterfronten, die für eine angenehme Arbeitsatmosphäre sorgen. Ein repräsentativer Empfangsbereich mit Tresen bietet einen professionellen ersten Eindruck. Die Flächen sind barrierefrei erreichbar und ermöglichen damit einen...
Ausstattung
. Bodenbelag: Vinylboden in Holzoptik
. Verkabelungsort: Fensterbankkabelkanäle
. natürliche Be-/ Entlüftung
. Teeküche: voll ausgestattet
. Heizungsart: Gaszentralheizung
. Beleuchtung: Deckenleuchten
. Verkabelung: CAT-5E
Highlights:
. barrierefrei
. Lager-/ Archivflächen
...
Preisinformation
Nettokaltmiete: 8,00 EUR
Weitere Informationen
Sonstiges
Es gelten ausschließlich unsere AGB (www.ruhr-real.de/agb). Wir möchten Sie darauf hinweisen, dass die Angaben ausschließlich auf den uns vom Eigentümer übermittelten Unterlagen und Informationen basieren. Für Richtigkeit und Vollständigkeit übernehmen wir keine Gewähr. Zwischenvermietung...
Anbieter der Immobilie

RUHR REAL GmbH
Holsterhauser Platz 2, 45147 Essen
Online-ID: 2mr4r5g
Referenznummer: 4681/E3
Finde Angebote wie dieses
Hier geht es zu unserem Impressum, den Allgemeinen Geschäftsbedingungen, den Hinweisen zum Datenschutz und nutzungsbasierter Online-Werbung.