

Lohmeier + Partner GmbH
Herr Mirko Petring
052 ···
Nr. anzeigenPreise & Kosten
Provision für Käufer
provisionsfrei
Lage
Dieses MFH wird im Stadtbezirk Bielefeld - Gadderbaum errichtet. Der Eggeweg liegt oberhalb von Bethel und nah an dem Bielefelder Ortsteil Brackwede. Eine Buslinie verläuft in fußläufiger Entfernung. Einkaufsmöglichkeiten und persönliche Versorgung bietet das Umfeld ebenso an.
Die Wohnung
Wohnanlage
Energie & Heizung
Warum sehe ich diese Anzeige? – Du siehst diese Anzeige basierend auf Ihrer Navigation auf unserer Website und den Suchkriterien, die du verwendet hast.
Weitere Energiedaten
Heizungsart
Fußbodenheizung, Luft-/Wasser-Wärmepumpe
Details
Objektbeschreibung
E x p o s é:
Neubau-Eigentumswohnungen
im exklusiven Mehrfamilienhaus
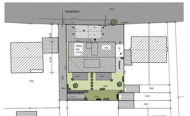
Adresse: Eggeweg 140, 33613 Bielefeld
Lage: Das Mehrfamilienhaus wird im Stadtbezirk Bielefeld-Gadderbaum errichtet. Der Eggeweg liegt oberhalb von Bethel und nah zur Brackwede. Nur wenige Meter verkehrt eine Buslinie. In Laufnähe...
Ausstattung
Kaufpreise:
Wohnung Aufteilung Wohnfläche Kaufpreis_
WE 1 – EG re. 3 ZKBWC, Terrasse 82,98 m² 399.900 €
WE 2 – EG li. 3 ZKBWC, Terrasse verkauft
WE 3 – OG re. 3 ZKBWC, Balkon 80,73 m² 394.900 €
WE 4 – OG li. 3 ZKBWC, Balkon verkauft
WE 5 – DG 4 ZKBWC, Loggia verkauft
Nebenanlagen: pro Wohnung 1...
Anbieter der Immobilie
Lohmeier + Partner GmbH
Elpke 115, 33605 Bielefeld

Online-ID: 2mpz45a
Finde Angebote wie dieses
Hier geht es zu unserem Impressum, den Allgemeinen Geschäftsbedingungen, den Hinweisen zum Datenschutz und nutzungsbasierter Online-Werbung.