
LEIPZIG estate Ihr Immobilienexperte Tews, Ohnesorge, Kupferschmied, Anscheit GbR
Frau Carolin Slowikowski
004 ···
Nr. anzeigenPreise & Kosten
Kaution
4.368,87
Warum sehe ich diese Anzeige? – Du siehst diese Anzeige basierend auf Ihrer Navigation auf unserer Website und den Suchkriterien, die du verwendet hast.
Lage
https://www.bing.com/search?pglt=297&q=langestra%C3%9Fe+35+in+Grimma&cvid=5a748a02e9464fc3be748184c637402d&gs_lcrp=EgRlZGdlKgYIABBFGDkyBggAEEUYOTIGCAEQABhAMgYIAhAAGEAyBggDEAAYQDIGCAQQABhAMgYIBRAAGEAyBggGEEUYPTIGCAcQRRg9MgcICBDrBxhA0gEINDE0MGowajGoAgCwAgA&FORM=ANNTA1&PC=U531
Die Wohnung
Wohnungslage
1. Geschoss
Bezug
sofort
Wohnanlage
Energie & Heizung
Warum sehe ich diese Anzeige? – Du siehst diese Anzeige basierend auf Ihrer Navigation auf unserer Website und den Suchkriterien, die du verwendet hast.
Weitere Energiedaten
Heizungsart
Fußbodenheizung
Details
Objektbeschreibung
Lieber Mietwohnungsinteressent,
unsere Eigentümer sanieren regelmäßig in Grimma und Umgebung Wohnungen, Reihenhäuser sowie Ein- und Zweifamilienhäuser.
Bei Interesse an einer solchen Immobilie mit mind. 4 Zimmern möchten wir eine Warteliste sowie einen Suchauftrag anbieten.
Daher sollte bei Ihnen jetzt...
Ausstattung
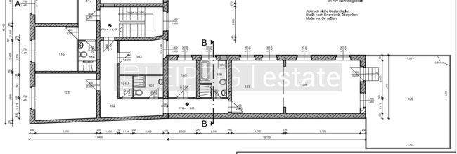
Erstbezug nach Sanierung. Daher liegen uns nur ein paar Bilder vor. Die Baustellenbilder sowie der Grundriss sind aktuell. Die anderen Bilder zeigen das zu erwartende Design des Austattungsgrades.
- Luftwärmepumpe
- Fußbodenheizung
- Vinylboden in allen Wohn- und Schlafräumen
- Balkon
- offene Küche mit...
Preisinformation
1 Stellplatz
Weitere Informationen
Sonstiges
Alle Angaben zum Objekt und dem Mietpreis, sowie Größen der Wohnungen beruhen auf den Angaben des Eigentümers. Für die Richtigkeit übernehmen wir keine Gewährleistung.
Weitere Objekte finden Sie unter www.leipzig-estate.de
Stichworte
Stellplatz vorhanden, Anzahl der Schlafzimmer: 3, Anzahl der...
Anbieter der Immobilie
LEIPZIG estate Ihr Immobilienexperte Tews, Ohnesorge, Kupferschmied, Anscheit GbR
Waldstr.55, 04105 Leipzig
Online-ID: 2mpyv5l
Referenznummer: CSL35-1L
Finde Angebote wie dieses
Hier geht es zu unserem Impressum, den Allgemeinen Geschäftsbedingungen, den Hinweisen zum Datenschutz und nutzungsbasierter Online-Werbung.