

IMMOFRANKEN GmbH
Herr Alexander Zhevelyuk
+49 ···
Nr. anzeigenPreise & Kosten
Provision für Käufer
3,57% inkl. gestetzlicher MwSt.
3,57% inkl. gestetzlicher MwSt.
Lage
Das Mehrfamilienhaus liegt im beliebten Nürnberger Stadtteil Rennweg, etwa 2 Kilometer nordöstlich der Altstadt. Diese Lage zeichnet sich durch ihre hervorragende Mischung aus urbanem Flair, guter Infrastruktur und Nähe zur Natur aus.
Hier profitieren Bewohner von einer ausgezeichneten Infrastruktur, die sowohl eine...
Das Grundstück
Details
Objektbeschreibung
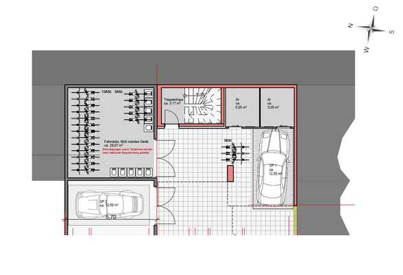
Diese zum Bau angebotene, ca. 106 m² große Grundstücksfläche befindet sich im Hofbereich eines ca. 1946 in Massivbauweise errichteten, gepflegten Mehrfamilienhauses im Stadtteil Rennweg in Nürnberg. Die entsprechenden Pläne sind bereits genehmigt und können auch so umgesetzt werden.
Der erstellte Plan für die Bebauung...
Weitere Informationen
Stichworte
Bundesland: Bayern
Anbieter der Immobilie

Online-ID: 2mpyu5k
Referenznummer: IF199276b
Finde Angebote wie dieses
Hier geht es zu unserem Impressum, den Allgemeinen Geschäftsbedingungen, den Hinweisen zum Datenschutz und nutzungsbasierter Online-Werbung.