
Evernest GmbH
Maria Bauer
+49 ···
Nr. anzeigenPreise & Kosten
Provision für Käufer
Provisionsfrei für den Käufer
Lage
Das Baugrundstück in der Edelsteinsiedlung liegt im westlichen Teil des Dortmunder Stadtbezirks Hörde. Die Gegend ist geprägt durch eine ruhige Wohnbebauung und eine gute Infrastruktur.
Die Anbindung an das Verkehrsnetz ist ausgezeichnet. Die Bundesstraße B54, sowie die Bundesautobahnen A1 und A45, sind in wenigen...
Das Haus
Kategorie
Doppelhaushälfte
Baujahr
2026
Energie & Heizung
Warum sehe ich diese Anzeige? – Du siehst diese Anzeige basierend auf Ihrer Navigation auf unserer Website und den Suchkriterien, die du verwendet hast.
Weitere Energiedaten
Energieträger
Elektro
Details
Objektbeschreibung
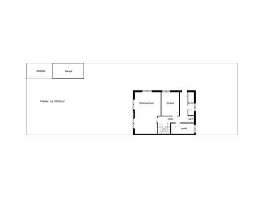
Diese stilvolle Neubau-Doppelhaushälfte mit einem KfW 55 Standard bietet Ihnen nicht nur modernes Wohnen, sondern auch eine nachhaltige und energieeffiziente Lösung. Mit einer Wohnfläche von 159,47m² und einem offenen Bereich von 50,59m² für Küche, Wohn- und Essbereich, können Sie sich hier frei entfalten.
Die...
Ausstattung
*159,47m² Wohnfläche
*3 Zimmer
*offene Küche mit großzügigem Wohn-Essbereich
*Tageslichtbadezimmer mit Dusche im EG
*Tageslichtbadezimmer mit Badewanne im OG
*KfW 55 Standard / 40 gegen Aufpreis möglich
*Hauswirtschaftsraum & Abstellraum
*Fußbodenheizung
*Fertigstellung voraussichtlich Dezember...
Weitere Informationen
Energiepass
Energieausweis wird bei Besichtigung vorgelegt.
Stichworte
Parkhaus vorhanden, Anzahl der Schlafzimmer: 3, Anzahl der Badezimmer: 2, Anzahl Terrassen: 1, 2 Etagen
Anbieter der Immobilie
Online-ID: 2mnz55f
Referenznummer: L-XBFR77W
Finde Angebote wie dieses
Hier geht es zu unserem Impressum, den Allgemeinen Geschäftsbedingungen, den Hinweisen zum Datenschutz und nutzungsbasierter Online-Werbung.