

TWE-Immobilien Thomas Erthle e. K.
Herr Peter Steinhauser
+49 ···
Nr. anzeigenPreise & Kosten
Provision für Käufer
3,57 % inkl. MwSt.
Lage
Die Marktgemeinde Weiler-Simmerberg liegt im schwäbischen Bodenseelandkreis Lindau mit ca. 6.600 Einwohnern. Hier wohnen Sie, wo andere Urlaub machen. In der Vierländerregion Bodensee bündeln sich attraktive Landschaften mit ausgezeichneter Lebensqualität, den Bodensee erreichen Sie in ca. 25 Minuten mit dem...
Das Haus
Kategorie
Einfamilienhaus
Baujahr
2026
Bezug
01.07.2026
Energie & Heizung
Warum sehe ich diese Anzeige? – Du siehst diese Anzeige basierend auf Ihrer Navigation auf unserer Website und den Suchkriterien, die du verwendet hast.
Weitere Energiedaten
Energieträger
Elektro
Heizungsart
Zentralheizung
Details
Objektbeschreibung
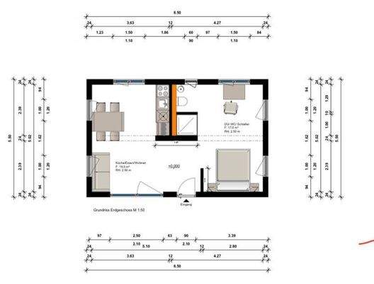
Mikro Häuser mit Grundstück bis zu ca. 350 m² in Weiler-Süd (Westallgäu)
so klein wie nötig - so schön wie möglich.
In traumhafter Hanglage von Weiler-Simmerberg entstehen moderne Mikro Häuser für alle, die bewusst leben, Qualität schätzen und das Besondere suchen.
Mit rund 40 m² Wohnfläche bieten die...
Ausstattung
- Schlüsselfertiges Modulhaus in moderner Leichtbauweise
- Wohnfläche: ca. 40 m² - barrierefrei & ebenerdig
- Energieeffizienz: KfW 55 Standard
- Dach: Satteldach mit 20° Neigung, PV- vorbereitet
- Fenster: 3-fach Isolierverglasung, hochwertige Kunststoffprofile
- Haustür: Aluminium mit 5-fach...
Preisinformation
1 Stellplatz
Weitere Informationen
Sonstiges
Um eine schnelle Bearbeitung zu gewährleisten, übermitteln Sie uns bitte Ihre vollständigen Kontaktdaten mit Telefon-Nr. und E-Mail-Adresse.
Wir vermitteln - mit Sicherheit.
Anbieter der Immobilie

Online-ID: 2mmry5q
Referenznummer: 3459 (1/3459)
Finde Angebote wie dieses
Hier geht es zu unserem Impressum, den Allgemeinen Geschäftsbedingungen, den Hinweisen zum Datenschutz und nutzungsbasierter Online-Werbung.