
ACADA Hausverwaltungs- & Immobilienmanagement GmbH
Frau Vencke Wassner
036 ···
Nr. anzeigenPreise & Kosten
Kaution
1.100,00 €
Warum sehe ich diese Anzeige? – Du siehst diese Anzeige basierend auf Ihrer Navigation auf unserer Website und den Suchkriterien, die du verwendet hast.
Lage
Die Lage der Wohnung ist besonders vorteilhaft für Berufstätige und Studierende. In nur ein paar Metern erreichen Sie die Haltestelle Bahnhofstraße, von wo aus Sie komfortabel die Straßenbahn nutzen können – ideal für Ihre täglichen Fahrten. Einkaufsmöglichkeiten wie Lidl und weitere Supermärkte liegen ebenfalls in...
Die Wohnung
Wohnungslage
Erdgeschoss
Bezug
sofort
Derzeitige Nutzung
frei
Wohnanlage
Energie & Heizung
Warum sehe ich diese Anzeige? – Du siehst diese Anzeige basierend auf Ihrer Navigation auf unserer Website und den Suchkriterien, die du verwendet hast.
Energieausweistyp
Verbrauchsausweis
Gebäudetyp
Wohngebäude
Baujahr laut Energieausweis
1997
Gültigkeit
10.11.2017 bis 08.11.2027
Effizienzklasse
E
Endenergieverbrauch
137,00 kWh/(m²·a)
Weitere Energiedaten
Energieträger
Gas
Heizungsart
Zentralheizung
Details
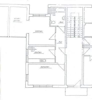
Objektbeschreibung
In der gefragten Nachbarschaft Gotha präsentiert sich diese reizvolle Wohnung, die perfekt für Singles oder Paare geeignet ist. Die großzügige Wohnfläche von 73,58 m² umfasst zwei lichtdurchflutete Zimmer sowie ein stilvolles Badezimmer. Dieses charmante Gebäude, das im Jahr 1997 errichtet wurde, erstreckt sich über zwei...
Ausstattung
Die Räume sind mit bequemem Fußbodenbelag ausgestattet, der sowohl ansprechend als auch pflegeleicht ist. Der geschickte Grundriss ermöglicht eine flexible Nutzung der Räume und trägt zur optimalen Raumnutzung bei.
Anbieter der Immobilie
ACADA Hausverwaltungs- & Immobilienmanagement GmbH
Siebleber Straße 5, 99867 Gotha
Online-ID: 2mmk254
Finde Angebote wie dieses
Hier geht es zu unserem Impressum, den Allgemeinen Geschäftsbedingungen, den Hinweisen zum Datenschutz und nutzungsbasierter Online-Werbung.