

Werth Immobilien eGbR
Frau Barbara Martens-Petersen
048 ···
Nr. anzeigenPreise & Kosten
Provision für Käufer
Bitte beachte, das Angebot kann bei Vertragsabschluss die Zahlung einer Provision beinhalten. Weitere Informationen erhältst Du vom Anbieter.
Lage
Die Stadt Wesselburen liegt im Kreis Dithmarschen in Schleswig-Holstein und hat ca. 3.600 Einwohner. Alle Versorgungseinrichtungen des täglichen Bedarfs sind vor Ort vorhanden.
Sie liegt inmitten der Marsch und ist somit landschaftlich außerordentlich attraktiv.
Kulturelle Angebote sind ebenso wie Cafés und...
Das Haus
Baujahr
1915
Bezug
nach Vereinbarung
Energie & Heizung
Warum sehe ich diese Anzeige? – Du siehst diese Anzeige basierend auf Ihrer Navigation auf unserer Website und den Suchkriterien, die du verwendet hast.
Energieausweistyp
Bedarfsausweis
Gebäudetyp
Wohngebäude
Baujahr laut Energieausweis
2001
Wesentliche Energieträger
GAS
Gültigkeit
bis 15.10.2032
Effizienzklasse
D
Endenergiebedarf
106,00 kWh/(m²·a)
Weitere Energiedaten
Energieträger
Gas
Heizungsart
Zentralheizung
Details
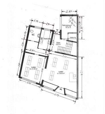
Objektbeschreibung
Dieses historische Kaufmannshaus aus dem Jahr 1915 vereint den Charme vergangener Jahrhunderte mit großzügigen, wunderschönen Wohnstrukturen und bietet Ihnen eine einzigartige Gelegenheit zur individuellen Gestaltung. Das Gebäude wurde zwischen 2011 und 2015 umfassend, mit viel Sachverstand und immer mit Blick auf das...
Ausstattung
- teilweise gedämmte Aussenfassade
- Ladenlokal mit ca.51m² Ladenfläche
und 16,3 m² Hinterräumen
- Kaminofen
- Holzdielen
- Balkon
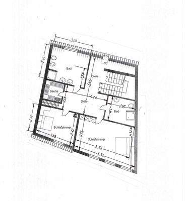
- Gäste-WC
- 2 Badezimmer
- Sauna
- viel Platz
Weitere Informationen
Sonstiges
Die Besichtigung ist jederzeit möglich, jedoch nach vorheriger Terminabsprache! Bitte wahren Sie die Diskretion und sehen Sie vom Betreten des Grundstücks ohne Begleitung des Immobilienberaters ab. Sämtliche Unterlagen und Angaben wurden uns vom Auftraggeber übergeben / mitgeteilt. Für die Richtigkeit dieser...
Anbieter der Immobilie
Werth Immobilien eGbR
Roggenstr. 1, 25704 Meldorf

Online-ID: 2mman5w
Referenznummer: ME-667-BMP-26
Finde Angebote wie dieses
Hier geht es zu unserem Impressum, den Allgemeinen Geschäftsbedingungen, den Hinweisen zum Datenschutz und nutzungsbasierter Online-Werbung.