
VON POLL IMMOBILIEN Schwäbisch Hall - CB Real Estate GmbH
VON POLL IMMOBILIEN Schwäbisch Hall
004 ···
Nr. anzeigenPreise & Kosten
Provision für Käufer
Käuferprovision beträgt 3,57 % (inkl. MwSt.) des beurkundeten Kaufpreises
Lage
Die Immobilie selbst befindet sich in einer ruhigen aber zentrumsnahen Lage in Mainhardt.
Einrichtungen und Einkaufsmöglichen des täglichen Bedarfs befinden sich in unmittelbarer Umgebung.
Der staatlich anerkannte Luftkurort Mainhardt liegt an der Bundesstraße B14 zwischen Schwäbisch Hall und Stuttgart und zeichnet...
Das Haus
Kategorie
Mehrfamilienhaus
Baujahr
1979
Energie & Heizung
Warum sehe ich diese Anzeige? – Du siehst diese Anzeige basierend auf Ihrer Navigation auf unserer Website und den Suchkriterien, die du verwendet hast.
Energieausweistyp
Bedarfsausweis
Gebäudetyp
Wohngebäude
Baujahr laut Energieausweis
1979
Wesentliche Energieträger
OEL
Gültigkeit
bis 07.01.2036
Effizienzklasse
D
Endenergiebedarf
114,90 kWh/(m²·a)
Weitere Energiedaten
Haustyp
Massivhaus
Energieträger
Öl, Solar
Heizungsart
offener Kamin
Details
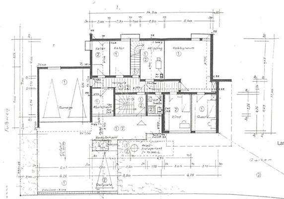
Objektbeschreibung
Dieses freistehende Zweifamilienhaus überzeugt durch seine großzügige Raumaufteilung, das weitläufige Grundstück und die vielfältigen Nutzungsmöglichkeiten für Familien, Mehrgenerationenwohnen oder Wohnen und Arbeiten unter einem Dach.
Auf einer Wohnfläche von ca. 230 m² und einem eindrucksvollen Grundstück von rund 1.610...
Ausstattung
Hier die Details der Immobilie in der Aufzählung:
- Freistehendes Zweifamilienhaus
- Ca. 230 m² Wohnfläche
- Ca. 90 m² Nutzfläche
- Ca. 1.610 m² Grundstücksfläche
- Zwei getrennte Wohneinheiten
- Obergeschoss: ca. 117 m²
- Dachgeschoss: ca. 78 m²
- Untergeschoss: ca. 35 m²
- Separates...
Preisinformation
2 Stellplätze
2 Garagenstellplätze
Weitere Informationen
Sonstiges
Es liegt ein Energiebedarfsausweis vor.
Dieser ist gültig bis 7.1.2036.
Endenergiebedarf beträgt 114.90 kwh/(m²*a).
Wesentlicher Energieträger der Heizung ist Öl.
Das Baujahr des Objekts lt. Energieausweis ist 1979.
Die Energieeffizienzklasse ist D.
GELDWÄSCHE: Als...
Online-ID: 2mlye5z
Referenznummer: 25256250
Finde Angebote wie dieses
Hier geht es zu unserem Impressum, den Allgemeinen Geschäftsbedingungen, den Hinweisen zum Datenschutz und nutzungsbasierter Online-Werbung.