

Immobilienwelt Prill
Frau Pia Prill
015 ···
Nr. anzeigenPreise & Kosten
Provision für Käufer
4,9%
Lage
Wonfurt liegt in ruhiger Wohnlage in der Nähe von Haßfurt im Landkreis Haßberge. Einkaufsmöglichkeiten, Schulen, Kindergärten sowie ärztliche Versorgung befinden sich im nahegelegenen Haßfurt und sind in kurzer Zeit erreichbar. Die Region bietet eine gute Verkehrsanbindung und eignet sich sowohl für Familien als auch für...
Das Renditeobjekt
Kategorie
Mehrfamilienhaus
Baujahr
1972
Bezug
sofort
Frei ab
vermietet, frei
Energie & Heizung
Warum sehe ich diese Anzeige? – Du siehst diese Anzeige basierend auf Ihrer Navigation auf unserer Website und den Suchkriterien, die du verwendet hast.
Weitere Energiedaten
Energieträger
Öl, Solar
Heizungsart
Zentralheizung
Details
Objektbeschreibung
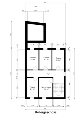
Zum Verkauf steht ein freistehendes Zweifamilienhaus in Wonfurt bei Haßfurt im Landkreis Haßberge. Die Immobilie wurde im Jahr 1972 erbaut und im Jahr 2005 umfassend saniert. Sie befindet sich in einem gepflegten Zustand und bietet mit rund 175 m² Wohnfläche sowie insgesamt 6 Zimmern vielfältige Nutzungsmöglichkeiten. Das...
Ausstattung
Im Jahr 2005 wurden umfangreiche Sanierungen durchgeführt. Dazu zählen die Dachsanierung, die Fassadendämmung, neue Fenster, die Erneuerung der gesamten Elektrik, neue Bodenbeläge sowie der Einbau einer Öl-Zentralheizung. Zusätzlich wurde im Jahr 2020 eine Solaranlage mit Pufferspeicher installiert. Im Dachgeschoss ist eine...
Weitere Informationen
Die Angaben beruhen auf Informationen des Eigentümers. Eine Haftung für deren Richtigkeit und Vollständigkeit kann nicht übernommen werden.
Anbieter der Immobilie

Online-ID: 2mlur5p
Finde Angebote wie dieses
Hier geht es zu unserem Impressum, den Allgemeinen Geschäftsbedingungen, den Hinweisen zum Datenschutz und nutzungsbasierter Online-Werbung.