
Scherf Profi Immobilien Service GmbH
Herr Norbert Scherf
065 ···
Nr. anzeigenPreise & Kosten
Provision für Käufer
provisionsfrei
Lage
Palzem, ein idyllischer Ort mit hoher Wohnqualität am Dreiländereck, nahe der französischen Grenze und unmittelbar am Großherzogtum Luxemburg in landschaftlich attraktivem Umfeld mit guter Anbindung nach Luxemburg.
Die Autobahn Luxemburg -Merzig - Saarbrücken erreichen Sie in ca. 10 Autominuten.
Das Objekt befindet...
Die Wohnung
Wohnungslage
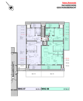
Dachgeschoss
Bezug
kurzfristig nach Vereinbarung
Derzeitige Nutzung
frei
Wohnanlage
Energie & Heizung
Warum sehe ich diese Anzeige? – Du siehst diese Anzeige basierend auf Ihrer Navigation auf unserer Website und den Suchkriterien, die du verwendet hast.
Energieausweistyp
Bedarfsausweis
Gebäudetyp
Wohngebäude
Baujahr laut Energieausweis
2025
Wesentliche Energieträger
Luft/Wasser-Wärmepumpe
Gültigkeit
seit 15.10.2021
Effizienzklasse
A
Endenergiebedarf
34,00 kWh/(m²·a)
Weitere Energiedaten
Haustyp
KfW 55
Heizungsart
Fußbodenheizung, Luft-/Wasser-Wärmepumpe
Details
Objektbeschreibung
Achtung Lux-Pendler - Moderne helle altersgerechte Wohnung mit unverbaubarem Moselblick im Energiesparhaus n schöner Randlage von Palzem mit guter Verkehrsanbindung nach Luxemburg.
Hohe Steuervorteile durch Neubauabschreibungen für Vermieter möglich !
Schöne helle sonnige Wohnung in gefragter ruhiger Lage am Ende einer...
Ausstattung
Achtung Lux-Pendler - Moderne helle altersgerechte Wohnung mit unverbaubarem Moselblick im Energiesparhaus n schöner Randlage von Palzem mit guter Verkehrsanbindung nach Luxemburg.
Hohe Steuervorteile durch Neubauabschreibungen für Vermieter möglich !
Schöne helle sonnige Wohnung in gefragter ruhiger Lage am Ende einer...
Preisinformation
1 Tiefgaragenstellplatz, Kaufpreis: 21.000,00 EUR
Weitere Informationen
Sonstiges
Der Energieausweis liegt vor.
Dieser wird dem Interessenten vor dem Besichtigungstermin mit dem Exposé zur Verfügung gestellt.
Vereinbaren Sie einen Besichtigungstermin ! In Zusammenarbeit mit einem Finanzierungsvermittler sind wir Ihnen gerne bei der Gestaltung Ihrer Finanzierung behilflich. Die...
Anbieter der Immobilie
Online-ID: 2mkwj5j
Referenznummer: ETNBPA308
Finde Angebote wie dieses
Hier geht es zu unserem Impressum, den Allgemeinen Geschäftsbedingungen, den Hinweisen zum Datenschutz und nutzungsbasierter Online-Werbung.