
Immobilienhaus Ahlers
Herr Hans Hermann Ahlers
015 ···
Nr. anzeigenPreise & Kosten
Provision für Käufer
2,975 % inkl. MwSt.
Lage
Die Objekte befinden sich in der Gemeinde Berne, Ortsteil Neuenhuntorfermoor, im Landkreis Wesermarsch in Niedersachsen. Die Lage ist durch seine Moorlandschaft und die Nähe zum Fluss geprägt.
Der "neue" Ortskern von Berne befindet sich etwa 7 km entfernt. Dort sind alle wichtigen Versorgungseinrichtungen, Ärzte...
Das Haus
Baujahr
1800
Bezug
nach Vereinbarung
Energie & Heizung
Warum sehe ich diese Anzeige? – Du siehst diese Anzeige basierend auf Ihrer Navigation auf unserer Website und den Suchkriterien, die du verwendet hast.
Weitere Energiedaten
Energieträger
Gas
Heizungsart
Zentralheizung
Details
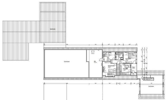
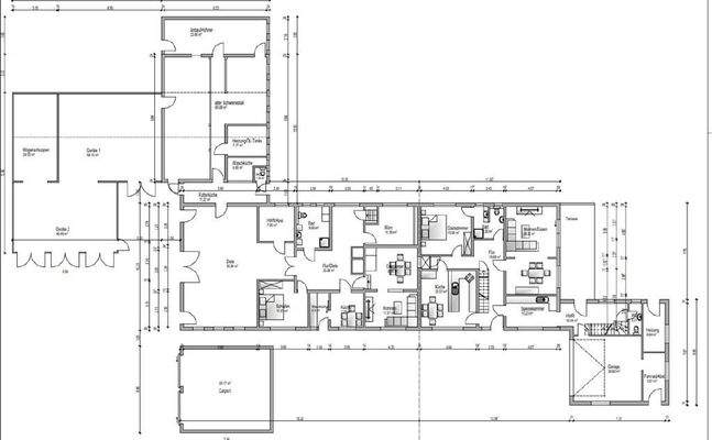
Objektbeschreibung
Dieses besondere Angebot eignet sich ideal für Käufer, die ein Zuhause für mehrere Generationen planen oder großzügiges Wohnen mit Entwicklungsperspektive suchen. Zwei der insgesamt drei möglichen Wohneinheiten stehen sofort zur Verfügung, während die dritte Einheit bei Bedarf zu einem späteren Zeitpunkt realisiert werden...
Preisinformation
6 Stellplätze
1 Garagenstellplatz
Weitere Informationen
Sonstiges
Bitte haben Sie Verständnis dafür, dass wir eine umfangreiche Information zu dem Objektangebot nur erteilen können, wenn Sie in Ihre Mail-Anfrage Ihre vollständigen Namen, Ihre Adresse sowie Ihre Telefonnummer angeben. Wir sind dem Eigentümer gegenüber nachweispflichtig. Ihre Daten werden selbstverständlich...
Anbieter der Immobilie
Immobilienhaus Ahlers
Auf der Nordheide 7, 27798 Hude
Online-ID: 2mkd755
Referenznummer: 0-58
Finde Angebote wie dieses
Hier geht es zu unserem Impressum, den Allgemeinen Geschäftsbedingungen, den Hinweisen zum Datenschutz und nutzungsbasierter Online-Werbung.