
iad Deutschland GmbH
Herr Oliver Strobel
004 ···
Nr. anzeigenPreise & Kosten
Provision für Käufer
3,57% (inkl. 19% MwSt.) inkl. MwSt.
Lage
Das Objekt liegt im etablierten Gewerbegebiet von Oberndorf am Lech, mit guter Anbindung an die B2 sowie die umliegenden Städte Donauwörth und Augsburg. Die Lage bietet optimale Sichtbarkeit, verkehrsgünstige Erreichbarkeit und ist infrastrukturell bestens erschlossen.
Das Renditeobjekt
Kategorie
Wohn- und Geschäftshaus
Bezug
nach Vereinbarung
Frei ab
vermietet
Energie & Heizung
Warum sehe ich diese Anzeige? – Du siehst diese Anzeige basierend auf Ihrer Navigation auf unserer Website und den Suchkriterien, die du verwendet hast.
Wärme
Strom
Energieausweistyp
Bedarfsausweis
Gebäudetyp
Nicht-Wohngebäude
Baujahr laut Energieausweis
1996
Wesentliche Energieträger
OEL
Gültigkeit
bis 14.12.2027
Endenergiebedarf (Wärme)
163,10 kWh/(m²·a)
Endenergiebedarf (Strom)
28,70 kWh/(m²·a)
Details
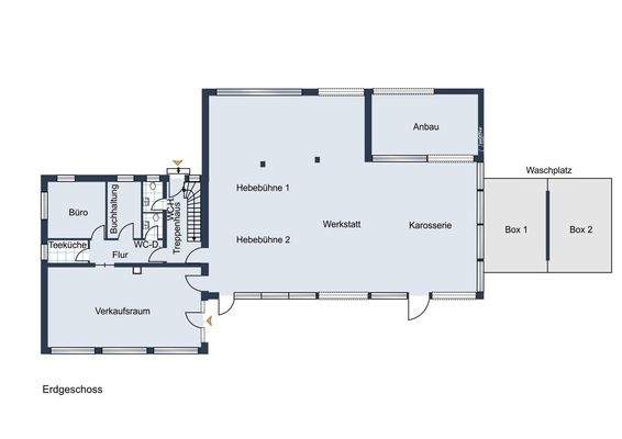
Objektbeschreibung
Gewerbeobjekt mit Kfz-Werkstatt, Büro und Wohnungen - Vollvermietet.
Kapitalanlage mit Substanz und Potenzial!
Im Gewerbegebiet von Oberndorf am Lech befindet sich dieses vielseitig nutzbare und vollständig vermietete Gewerbeobjekt, das speziell für den Betrieb einer Kfz-Werkstatt mit Büro und Betreiberwohnung...
Ausstattung
Verkaufsraum mit Büro:
Repräsentativer Eingangsbereich mit Verkaufsfläche und angeschlossenem Büro. Davor befindet sich eine großzügige Freifläche für Kundenparkplätze.
Kfz-Werkstatt:
Direkt angrenzend an den Verkaufsbereich liegt die Werkstatt mit Hebebühnen, vollständiger technischer Ausstattung und Rolltoren für...
Preisinformation
6 Stellplätze
Weitere Informationen
Sonstiges
An den Kunden durch uns weitergeleitete Angaben und Informationen zu Objekten liegen die uns erteilten Auskünfte des Veräußerers bzw. Vermieters zugrunde. Die IAD Deutschland GmbH hat diese Angaben nicht geprüft. Vielmehr obliegt die Prüfung der Richtigkeit und/oder Vollständigkeit der Angaben allein dem Kunden...
Anbieter der Immobilie
iad Deutschland GmbH
Schleusenstraße 15-17, 60327 Frankfurt am Main
Online-ID: 2mjqb5a
Referenznummer: iad-3579
Finde Angebote wie dieses
Hier geht es zu unserem Impressum, den Allgemeinen Geschäftsbedingungen, den Hinweisen zum Datenschutz und nutzungsbasierter Online-Werbung.