
Crozilla.com
Domus Trogir
+38 ···
Nr. anzeigenPreise & Kosten
Provision für Käufer
Bitte beachte, das Angebot kann bei Vertragsabschluss die Zahlung einer Provision beinhalten. Weitere Informationen erhältst Du vom Anbieter.
Die Wohnung
Wohnungslage
1. Geschoss
Details
Objektbeschreibung
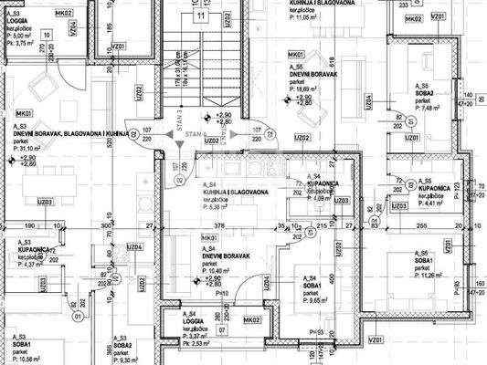
Wir bieten eine Zweizimmerwohnung im ersten Obergeschoss eines im Bau befindlichen Wohngebäudes in Slatina auf der Insel Ciovo zum Verkauf an. Die Wohnung trägt die Kennzeichnung STAN 5.
Die Wohnung besteht aus zwei Schlafzimmern, einem Badezimmer mit WC, einem Wohn-/Essbereich mit Küche und einer Loggia.
Die Wohnfläche...
Weitere Informationen
Stichworte
Anzahl der Schlafzimmer: 2, Anzahl der Badezimmer: 1, 1 Etagen
Anbieter der Immobilie
Crozilla.com
Nova cesta 60, 10000 ZAGREB
Online-ID: 2mjay5v
Referenznummer: 18906608_0
Finde Angebote wie dieses
Hier geht es zu unserem Impressum, den Allgemeinen Geschäftsbedingungen, den Hinweisen zum Datenschutz und nutzungsbasierter Online-Werbung.