

Köhldorfner Holzbau GmbH
Frau Andrea Köhldorfner
080 ···
Nr. anzeigenPreise & Kosten
Provision für Käufer
provisionsfrei
Lage
Dieses TinyChalet steht in bevorzugter, ruhiger Wohnlage von Wasserburg am Inn – ideal für alle, die naturnah wohnen und dennoch schnell in der Stadt sein möchten. Die charmante Altstadt mit Einkaufsmöglichkeiten, Cafés und Restaurants ist nur wenige Minuten entfernt.
Die Infrastruktur rund um den Standort ist...
Das Haus
Kategorie
Chalet
Bezug
01.05.2026
Energie & Heizung
Warum sehe ich diese Anzeige? – Du siehst diese Anzeige basierend auf Ihrer Navigation auf unserer Website und den Suchkriterien, die du verwendet hast.
Energieausweis: für diesen Gebäudetyp nicht notwendig
Details
Objektbeschreibung
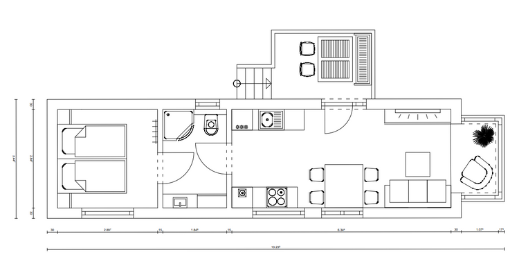
Modell „Sonntagshorn“ – Häuser natürlich g´sund
Das TinyChalet Sonntagshorn vereint 39 m² Wohnfläche mit hochwertigem, ökologischem Holzbau und moderner Ausstattung. Bodenschonend auf Schraubfundamenten errichtet, bietet es ein gesundes Raumklima, lichtdurchflutete Wohnbereiche und ein durchdachtes Raumkonzept mit...
Ausstattung
98 % natürliche Holzbauweise – nachhaltiges, gesundes Wohnklima und hohe Energieeffizienz
Inklusive hochwertiger Küche & Badezimmereinrichtung – sofort bezugsbereit
Schraubfundamente statt Beton – schnelle Montage, keine Bodenversiegelung, rückstandslos rückbaubar
Flexible Raumaufteilung möglich –...
Weitere Informationen
Das Grundstück mit ca. 250 m² kann auf eine flexible Laufzeit gepachtet werden – für nur ca. 250 € im Monat.
Eine ideale Möglichkeit, hochwertiges Wohnen ohne Grundstückskauf zu realisieren und gleichzeitig maximal flexibel zu bleiben.
Kontaktieren Sie uns gerne für weitere Informationen oder zur Vereinbarung eines...
Dokumente
Anbieter der Immobilie
Köhldorfner Holzbau GmbH
Stangern 7, 83530 Schnaitsee

Online-ID: 2mhuf5n
Referenznummer: 4444
Finde Angebote wie dieses
Hier geht es zu unserem Impressum, den Allgemeinen Geschäftsbedingungen, den Hinweisen zum Datenschutz und nutzungsbasierter Online-Werbung.