
Schäfer Immobilien GmbH
Frau Nancy Hempel
+49 ···
Nr. anzeigenPreise & Kosten
Provision für Käufer
3,57%
Lage
Das Mehrfamilienhaus befindet sich in zentraler Lage von Balve im Märkischen Kreis. Die Innenstadt mit zahlreichen Einkaufsmöglichkeiten, Gastronomie, Dienstleistern sowie öffentlichen Einrichtungen wie Schulen und Apotheken ist in wenigen Gehminuten erreichbar.
Durch die gute Verkehrsanbindung - u. a. über die...
Das Haus
Kategorie
Mehrfamilienhaus
Baujahr
1929
Bezug
ab sofort
Derzeitige Nutzung
vermietet
Energie & Heizung
Warum sehe ich diese Anzeige? – Du siehst diese Anzeige basierend auf Ihrer Navigation auf unserer Website und den Suchkriterien, die du verwendet hast.
Energieausweistyp
Bedarfsausweis
Gebäudetyp
Wohngebäude
Wesentliche Energieträger
Gas
Gültigkeit
05.06.2020 bis 04.06.2030
Effizienzklasse
F
Endenergiebedarf
195,80 kWh/(m²·a)
Weitere Energiedaten
Haustyp
Massivhaus
Energieträger
Gas
Details
Objektbeschreibung
Dieses Mehrfamilienhaus aus dem Jahr 1929 überzeugt durch seinen typischen Altbau-Charakter und eine massive, langlebige Bauweise. Mit einer Gesamtwohnfläche von ca. 175 m² verteilt auf 4 Parteien bietet die Immobilie vielfältige Nutzungsmöglichkeiten - ideal als renditestarkes Anlageobjekt.
Das Gebäude verfügt über...
Ausstattung
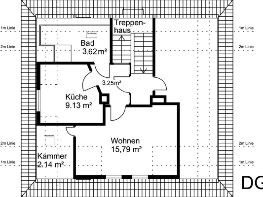
Wohnung DG: ca. 38m² (vermietet)
Wohnung OG: ca. 72m² ( vermietet)
Wohnung EG rechts: ca. 32m² (vermietet)
Wohnung EG links: ca. 33m² (vermietet, Gewerbe)
Aktuelle Mieteinnahmen: 14.580,-€ p.a.
Sanierungen
- 2009 Wohnung OG. Bad komplett, Elektroarbeiten.
- 2009 Neue Holz-Fenster außer...
Preisinformation
1 Garagenstellplatz
Ist-Mieteinnahmen pro Jahr: 14.580,00 EUR
Weitere Informationen
Sonstiges
Der Makler weist darauf hin, dass die von ihm weitergegebenen Objektinformationen vom Vermieter bzw. von einem vom Vermieter beauftragten Dritten stammen und von ihm, dem Makler, auf ihre Richtigkeit nicht überprüft worden sind. Es ist Sache des Kunden, diese Angaben auf ihre Richtigkeit hin zu überprüfen. Der...
Anbieter der Immobilie
Schäfer Immobilien GmbH
Am Stadtgarten 1, 58809 Neuenrade
Online-ID: 2mhpj5m
Referenznummer: 5632#j9avoC
Finde Angebote wie dieses
Hier geht es zu unserem Impressum, den Allgemeinen Geschäftsbedingungen, den Hinweisen zum Datenschutz und nutzungsbasierter Online-Werbung.