

EMA IMMOBILIEN GmbH
Herr Mario Hesse
+49 ···
Nr. anzeigenPreise & Kosten
Provision für Käufer
3,57 % inkl. MwSt.
Lage
Falkensee ist eine sehr beliebte und familienfreundliche Stadt am westlichen Berliner Stadtrand, welche in eine tolle Naturlandschaft eingebettet ist und zu ausgedehnten Spaziergängen und abwechslungsreichen Freizeitaktivitäten an frischer Luft einlädt.
Falkensee gehörte im Jahr 2017 zu den am schnellsten wachsenden...
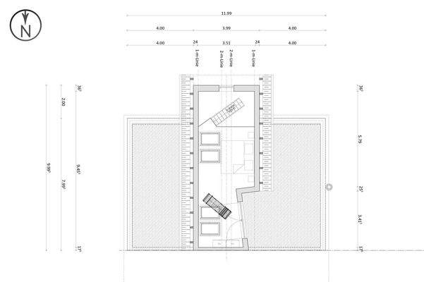
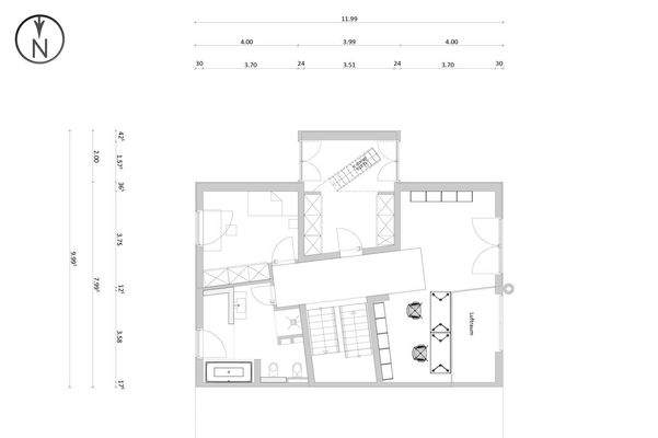
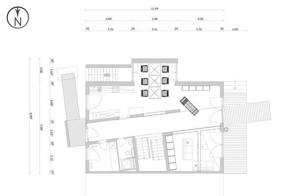
Das Haus
Kategorie
Doppelhaushälfte
Baujahr
1994
Energie & Heizung
Warum sehe ich diese Anzeige? – Du siehst diese Anzeige basierend auf Ihrer Navigation auf unserer Website und den Suchkriterien, die du verwendet hast.
Energieausweistyp
Verbrauchsausweis
Gebäudetyp
Wohngebäude
Baujahr laut Energieausweis
2019
Wesentliche Energieträger
GAS
Gültigkeit
bis 01.02.2033
Effizienzklasse
C
Endenergieverbrauch
88,00 kWh/(m²·a)
Weitere Energiedaten
Energieträger
Gas
Heizungsart
Fußbodenheizung
Details
Objektbeschreibung
Es handelt sich um eine in moderner Architektur und klaren Linien gebaute Doppelhaushälfte mit begrüntem Flachdach, einem Carport und einem Koiteich mit kleinem Wasserfall.
Die Doppelhaushälfte wurde 1994 in aufwendiger Massivbauweise mit hochwertiger Ausstattung auf einem ca. 466 m² großen Gartengrundstück errichtet...
Ausstattung
- Bahnhof Falkensee-Finkenkrug ca. 10 Minuten Fußweg entfernt
- hochwertige Massivbauweise aus Porenbeton und Kalksandstein
- moderne Architektur mit klaren Linien Baujahr 1994
- begrüntes Flachdach mit Photovoltaikanlage
- Photovoltaikanlage mit ca. 10 kWp zum Eigenverbrauch und Einspeisung
- überdachter...
Preisinformation
1 Carportplatz
Weitere Informationen
Sonstiges
Die Courtage in Höhe von 3,57 % des Kaufpreises (inklusive 19% MwSt.) wird vom Käufer getragen und ist verdient und zahlbar an die EMA IMMOBILIEN GmbH nach Beurkundung des notariellen Kaufvertrages. Wir freuen uns über Ihren Anruf oder Ihre Anfrage.
Wir bieten Ihnen diese Immobilie zu unseren Allgemeinen...
Anbieter der Immobilie

Online-ID: 2mhj95s
Referenznummer: 6389PS
Finde Angebote wie dieses
Hier geht es zu unserem Impressum, den Allgemeinen Geschäftsbedingungen, den Hinweisen zum Datenschutz und nutzungsbasierter Online-Werbung.