
Ritter Bauträger & Immobilien GmbH
Herr Maximilian Ritter
+49 ···
Nr. anzeigenPreise & Kosten
Kaution
3 Nettokaltmieten
Provision für Mieter
provisionsfrei
Warum sehe ich diese Anzeige? – Du siehst diese Anzeige basierend auf Ihrer Navigation auf unserer Website und den Suchkriterien, die du verwendet hast.
Lage
Gewerbegebiet Taufkirchen / Potzham
Das Gewerbegebiet in Taufkirchen / Potzham zeichnet sich durch seine hervorragende Lage und eine optimale Anbindung an die umliegende Infrastruktur aus. Das Areal bietet Unternehmen unterschiedlichster Branchen ideale Bedingungen, sich im südlichen Umland von München...
Büro-/Praxisfläche
Kategorie
Bürofläche
Baujahr
1988
Bezug
ab sofort
Geschoss
2. Geschoss
Energie & Heizung
Warum sehe ich diese Anzeige? – Du siehst diese Anzeige basierend auf Ihrer Navigation auf unserer Website und den Suchkriterien, die du verwendet hast.
Wärme
Strom
Energieausweistyp
Verbrauchsausweis
Gebäudetyp
Nicht-Wohngebäude
Baujahr laut Energieausweis
1988
Gültigkeit
bis 28.10.2024
Endenergieverbrauch (Wärme)
64,40 kWh/(m²·a)
Endenergieverbrauch (Strom)
2,00 kWh/(m²·a)
Weitere Energiedaten
Energieträger
Gas
Heizungsart
Zentralheizung
Details
Objektbeschreibung
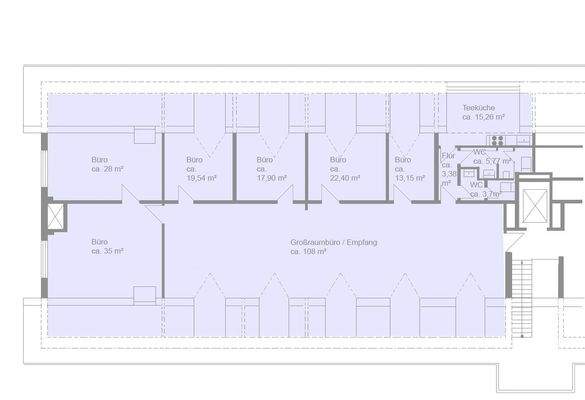
Die hier angebotene attraktive und multifunktionale Bürofläche befindet sich im Gewerbegebiet Taufkirchen / Potzham, welches in wenigen Minuten von der Autobahnausfahrt Oberhaching zu erreichen ist. Die Gewerbeeinheit im Dachgeschoss ist auf 7 großzügige Räume aufgeteilt und umfasst insgesamt ca. 272 m². Zusätzlich befindet...
Ausstattung
MERKMALE & AUSSTATTUNG
moderner Vinylboden in Holzoptik
Lift bis 1000 kg
Drehstrom
Glasfaserkabelanschluss im Gebäude
Küchenraum
Getrennte Sanitäreinrichtungen (Damen & Herren)
Rampe für Anlieferung
Bodenbelastung bis 500 kg / m²
Preisinformation
5 Stellplätze, Miete je: 30,00 EUR
Weitere Informationen
Sonstiges
Staffelung der Miete für die ersten Jahre, danach Indexierung (individuell zu vereinbaren)
Stichworte
Sonstiges: EDV-Verkabelung, Kabelkanäle, Getrennte Damen- und Herren-WCs
Dokumente
Anbieter der Immobilie
Online-ID: 2mgwh5d
Referenznummer: 1362
Finde Angebote wie dieses
Hier geht es zu unserem Impressum, den Allgemeinen Geschäftsbedingungen, den Hinweisen zum Datenschutz und nutzungsbasierter Online-Werbung.