
Crozilla.com
Stella&Mar d.o.o.
+38 ···
Nr. anzeigenPreise & Kosten
Provision für Käufer
Bitte beachte, das Angebot kann bei Vertragsabschluss die Zahlung einer Provision beinhalten. Weitere Informationen erhältst Du vom Anbieter.
Das Haus
Geschosse
1 Geschoss
Details
Objektbeschreibung
Schöne Villa zum Verkauf, erste Reihe zum Meer auf der Insel Vir.
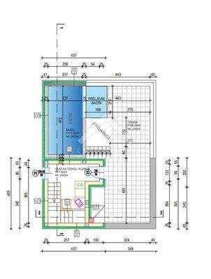
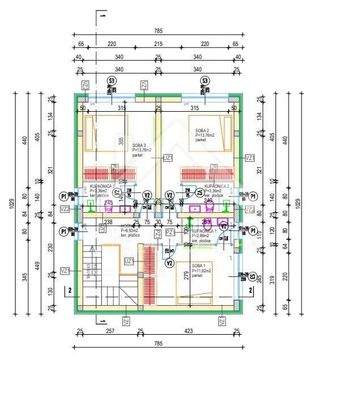
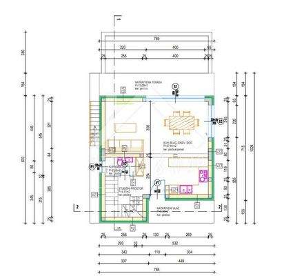
Es befindet sich auf einem Grundstück von 322m2 und besteht aus einem Erdgeschoss, einem ersten Stock und einer Dachterrasse.
Im Erdgeschoss gibt es ein geräumiges Wohnzimmer mit Küche und Esszimmer sowie ein Badezimmer. Von der überdachten Terrasse...
Weitere Informationen
Stichworte
Anzahl der Schlafzimmer: 3, Anzahl der Badezimmer: 4, 1 Etagen
Anbieter der Immobilie
Crozilla.com
Nova cesta 60, 10000 ZAGREB
Online-ID: 2mens5d
Referenznummer: 18650003_0
Finde Angebote wie dieses
Hier geht es zu unserem Impressum, den Allgemeinen Geschäftsbedingungen, den Hinweisen zum Datenschutz und nutzungsbasierter Online-Werbung.