

Immobilien Kontor Nord
Herr Christian Trems
038 ···
Nr. anzeigenPreise & Kosten
Provision für Käufer
3,57 inkl. MwSt.
Lage
Diese Immobilie befindet sich in einer ausgesprochen naturnahen und ruhigen Lage in einem Ortsteil der Gemeinde Blumenholz, im Landkreis Mecklenburgische Seenplatte - einer der schönsten und wasserreichsten Regionen Deutschlands. Die Umgebung ist geprägt von einer abwechslungsreichen Landschaft mit ausgedehnten Wäldern...
Das Haus
Kategorie
Einfamilienhaus
Baujahr
1978
Energie & Heizung
Warum sehe ich diese Anzeige? – Du siehst diese Anzeige basierend auf Ihrer Navigation auf unserer Website und den Suchkriterien, die du verwendet hast.
Weitere Energiedaten
Energieträger
Öl
Details
Objektbeschreibung
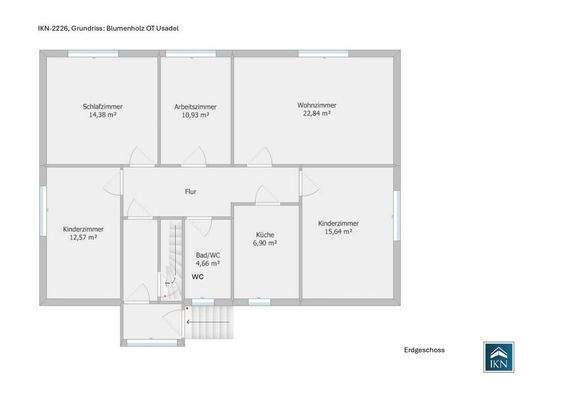
Dieses gepflegte Einfamilienhaus, erbaut im Jahr 1978, befindet sich in ruhiger Lage von Blumenholz-Usadel.
Das massiv errichtete Gebäude überzeugt durch eine durchdachte Raumaufteilung, helle Wohnräume und vielfältige Nutzungsmöglichkeiten.
Das Erdgeschoss mit einer Wohnfläche von ca. 90 m² bietet ein komfortables...
Ausstattung
-Baujahr: 1978
-Bauweise: massiv - Holzbeton
-Grundstücksgröße: ca. 696 m²
-Wohnfläche: ca. 90 m² (Erdgeschoss) + ausgebauter Keller
-Zimmer: 7
-1 Bad mit Dusche und Badewanne
- separates WC
-Etagen: Keller + Erdgeschoss
-Heizung: Kombi Öl-/Holzheizung
Modernisierungen:
-1992...
Weitere Informationen
Sonstiges
Haftungsausschluss: Die hier gemachten Angaben zur Immobilie beziehen sich größtenteils auf Angaben des Eigentümers, die Firma Immobilien Kontor Nord übernimmt für die Richtigkeit der Angaben keine Haftung. Alle Angaben sind durch den Interessenten/ Käufer selbst zu prüfen. Bei den Maßangaben der Wohn- und...
Anbieter der Immobilie

Online-ID: 2mdze52
Referenznummer: IKN-2226
Finde Angebote wie dieses
Hier geht es zu unserem Impressum, den Allgemeinen Geschäftsbedingungen, den Hinweisen zum Datenschutz und nutzungsbasierter Online-Werbung.