

VIVEE Immobillienbuero
004 ···
Nr. anzeigenPreise & Kosten
Provision für Käufer
provisionsfrei
Das Haus
Kategorie
Doppelhaushälfte
Details
Objektbeschreibung
Moderne Neubauvilla in Meeresnähe in Javea
Exklusives mediterranes Wohnen in Javea
Entdecken Sie diese atemberaubende, moderne Villa in einer der begehrtesten und ruhigsten Gegenden von Javea, nur 800 Meter vom Meer entfernt. Eingebettet zwischen Pinien und in der Nähe der berühmten Cala de la Barraca und Cala del Portixol...
Weitere Informationen
Stichworte
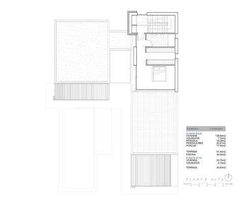
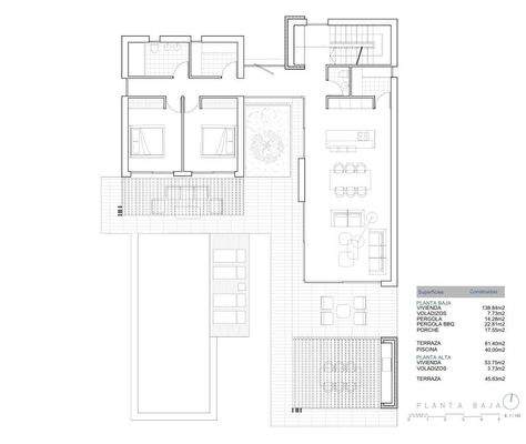
Nutzfläche: 210,00 m², Gesamtfläche: 210,00 m², Anzahl der Schlafzimmer: 3, Anzahl der Badezimmer: 2, Bundesland: Alicante (Costa Blanca)>
Anbieter der Immobilie
VIVEE Immobillienbuero
Calle Salvador Dali 13, C.C Via Park II, Local 15, 03189 Orihuele Costa
004 ···
Nr. anzeigenOnline-ID: 2mdzc58
Referenznummer: REDSP-38529
Finde Angebote wie dieses
Hier geht es zu unserem Impressum, den Allgemeinen Geschäftsbedingungen, den Hinweisen zum Datenschutz und nutzungsbasierter Online-Werbung.