

HUETHER & PARTNER SLU
Herrn Walter Hüther
003 ···
Nr. anzeigenPreise & Kosten
Provision für Käufer
provisionsfrei
Lage
Die Neubau-Anlage befindet sich im idyllischen Colonia de Sant Jordi im Süden Mallorcas, unweit der malerischen Salinen von S Avall. Nur 300 Meter entfernt erstrecken sich die Strände Els Estanys und Es Trenc, die mir ihrem kristallklaren, türkisfarbenen Wasser, feinem weißen Strand, sowie den
umgebenden Dünen und...
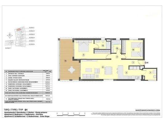
Die Wohnung
Wohnungslage
1. Geschoss
Bezug
30.11.2026
Wohnanlage
Energie & Heizung
Warum sehe ich diese Anzeige? – Du siehst diese Anzeige basierend auf Ihrer Navigation auf unserer Website und den Suchkriterien, die du verwendet hast.
Weitere Energiedaten
Heizungsart
Fußbodenheizung
Details
Objektbeschreibung
Diese DESIGNER-Wohnung befindet sich im I.OG in einer DESIGNER-BLOCK-ANLAGE im Süden der Insel von Mallorca, in der wunderschönen Gegend vom karibischen Strand "Es Trenc" in der Gemeinde Colonia de Sant Jordi mit dem traumhaften und weitläufigen Sandstrand und dem kristallklarem Wasser,
All dies macht Ihr Zuhause am...
Ausstattung
Geflieste Böden mit Steinzeugfliesen
raumhoch geflieste Bäder
moderne Einbauküche ohne Geräte
Vorbereitung für Klima-Anlagen warm/kalt
Hauswirtschaftsraum
Bäder inkl. Badmöbel, Spiegel und LED Beleuchtung
Fußbodenheizung in den Bädern
SAT TV Anschlüssen und Internet im Wohnraum und den...
Preisinformation
1 Garagenstellplatz
Weitere Informationen
Sonstiges
Die NEUBAU-Anlage besteht aus 28 Wohnungen in 7 Blocks bestehend aus EG-, Etagen- und Penthouse-Wohnungen mii jeweils 2 oder 3 Schlafzimmern.
Die Wohnungen werden fertig gestellt zum November 2026.
Sichern Sie sich jetzt eine LUXUS-Wohnung und bezahlen Sie diese erst im November...
Anbieter der Immobilie
HUETHER & PARTNER SLU
Ronda del Oeste N°76, 07680 MANACOR - PORTO CRISTO

Online-ID: 2md395u
Referenznummer: 24-064
Finde Angebote wie dieses
Hier geht es zu unserem Impressum, den Allgemeinen Geschäftsbedingungen, den Hinweisen zum Datenschutz und nutzungsbasierter Online-Werbung.