
Reppe Immobilien GmbH
Herr Cornelius Reppe
+49 ···
Nr. anzeigenPreise & Kosten
Provision für Käufer
3,57 %
Lage
Das Wohnhaus befindet sich in einer beruhigten Nebenstraße in Ortsteil Sollschwitz bei Göda. Der ländlich geprägte Ortsteil der Gemeinde Göda im Landkreis Bautzen, liegt wenige Kilometer westlich von Bautzen und nur rund 1,4 km nördlich der Autobahn A4 . Die Anbindung an das regionale Straßennetz ist gut: Nördlich verläuft...
Das Haus
Kategorie
Einfamilienhaus
Baujahr
2000
Energie & Heizung
Warum sehe ich diese Anzeige? – Du siehst diese Anzeige basierend auf Ihrer Navigation auf unserer Website und den Suchkriterien, die du verwendet hast.
Energieausweistyp
Verbrauchsausweis
Gebäudetyp
Wohngebäude
Gültigkeit
bis 19.11.2035
Effizienzklasse
B
Endenergieverbrauch
59,00 kWh/(m²·a)
Weitere Energiedaten
Energieträger
Öl
Heizungsart
Zentralheizung
Details
Objektbeschreibung
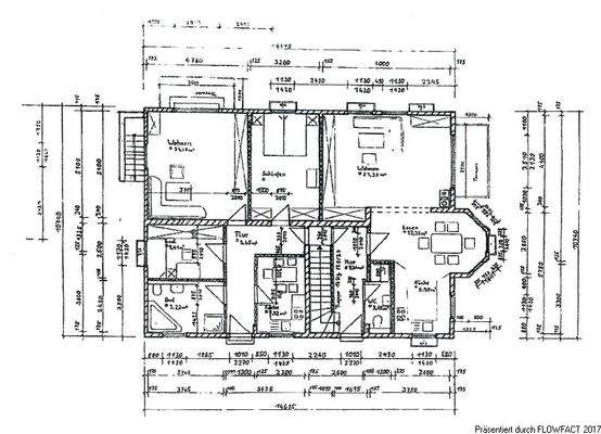
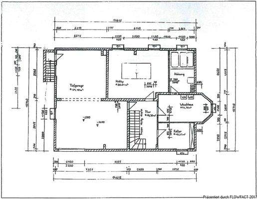
Zum Verkauf steht ein Einfamilienhaus mit Einliegerwohnung in Göda/Sollschwitz. Das Wohnhaus wurde im Jahr 2000 massiv erbaut und verfügt über insgesamt 249 m² Wohnfläche. Das Gebäude ist vollständig unterkellert mit einer integrierten, großzügigen PKW Garage für 2 Fahrzeuge. Die Hauptwohnung verfügt über ca. 160 m²...
Ausstattung
Das Wohnhaus wurde im Jahr 2000 aus Kalksandstein erbaut und befindet sich ein einem zeitgemäßen Zustand. Im Erdgeschoss der Hauptwohnung befinden sich ein große Wohn-Essküche mit Kamin und einem Austritt auf die Terrasse. Weiterhin erstreckt sich vom Flur ein Gäste-WC und der Zugang zum Kellergeschoss. Im Obergeschoss...
Weitere Informationen
Sonstiges
Baujahr: 2000
Heizungsart: Zentralheizung
Befeuerung/Energieträger: Öl
Energieausweistyp: Verbrauchsausweis
Energiekennwert: 59 kWh/(m²*a)
Energieeffizienzklasse: B
Der Verkauf findet freihändig statt. Wir handeln im direkten Auftrag des Eigentümers. Alle Angaben, Abmessungen, Darstellungen...
Anbieter der Immobilie
Online-ID: 2mcgk5n
Referenznummer: 3952
Finde Angebote wie dieses
Hier geht es zu unserem Impressum, den Allgemeinen Geschäftsbedingungen, den Hinweisen zum Datenschutz und nutzungsbasierter Online-Werbung.