
Christian Müller Immobilien GmbH & Co. KG
Herr Frederic Winnewisser
004 ···
Nr. anzeigenPreise & Kosten
Provision für Käufer
3,57% inkl. MwSt. (19%) inkl. MwSt.
Lage
Kirchzarten liegt im Herzen des südlichen Schwarzwaldes und gehört zur Metropolregion Freiburg.
Die charmante Gemeinde bietet eine perfekte Kombination aus Natur, Ruhe und einer ausgezeichneten Anbindung an die Stadt Freiburg.
Die Region ist bekannt für ihre landschaftliche Schönheit, insbesondere die zahlreichen...
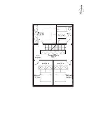
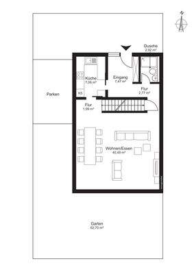
Das Grundstück
Details
Objektbeschreibung
Zum Verkauf steht ein baureifes Grundstück mit gültiger Baugenehmigung in attraktiver Lage im Kernort von Kirchzarten.
Das Grundstück bietet Ihnen die seltene Gelegenheit, Ihren persönlichen Wohntraum in einer der beliebtesten Wohnlagen des Dreisamtals zu verwirklichen.
Hier können Sie - auf Wunsch gemeinsam mit einem...
Ausstattung
- Baureifes Grundstück mit genehmigtem Konzept
- Unterkellerung
- Außenstellplatz
- Familienfreundliche Lage im Herzen von Kirchzarten
- voraussichtliche Bauzeit von 12 Monaten
Ausführlichere Informationen erhalten Sie im vollständigen Exposé.
Anbieter der Immobilie
Online-ID: 2mcau5q
Referenznummer: ZS25
Finde Angebote wie dieses
Hier geht es zu unserem Impressum, den Allgemeinen Geschäftsbedingungen, den Hinweisen zum Datenschutz und nutzungsbasierter Online-Werbung.