
Bonava Deutschland GmbH
Team Ihr Beratungsteam der Bonava Deutschland GmbH
+49 ···
Nr. anzeigenDieses Angebot ist Teil des Neubauprojekts
Römerquartier
Preise & Kosten
Provision für Käufer
provisionsfrei
Lage
Die Nähe zu Frankfurt mit direkter S-Bahn-Verbindung ist ein echtes Plus. Zum S-/RE-Bahnhof radeln Sie nur wenige Minuten. Langen selbst ist die Stadt der kurzen Wege: Supermärkte, Kitas und Schulen befinden sich in direkter Nachbarschaft. In die schöne Altstadt sind es 1,7 km.
Das Haus
Kategorie
Doppelhaushälfte
Baujahr
2026
Bezug
01.12.2026
Das Neubauprojekt
Energie & Heizung
Warum sehe ich diese Anzeige? – Du siehst diese Anzeige basierend auf Ihrer Navigation auf unserer Website und den Suchkriterien, die du verwendet hast.
Weitere Energiedaten
Haustyp
Massivhaus
Energieträger
Fernwärme
Heizungsart
Fußbodenheizung
Details
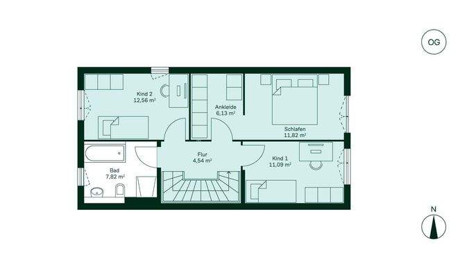
Objektbeschreibung
Ihr neues Zuhause im Römerquartier inklusive Studio im Dachgeschoss.
Beim Betreten des Erdgeschosses Ihres neuen Zuhauses empfängt Sie ein einladender Wohnbereich, der mit einer offenen Küche verbunden ist. Die Terrasse bietet zusätzlichen Raum für gemütliche Stunden im Freien. Praktische Räume wie ein...
Ausstattung
- Massivbau als Effizienzhaus 55
- inklusive erschlossenem Grundstück
- große Dachterrasse
- Gartenanteil
- 2 Außenstellplätze
- viel Platz im Studio
- Ankleide am Schlafzimmer
- zwei Kinderzimmer
- Bad mit Dusche und Badewanne
- Fußbodenheizung
- bodentiefe Fenster
- Handtuchheizkörper
-...
Preisinformation
2 Stellplätze
1 Garagenstellplatz
Weitere Informationen
Sonstiges
Jetzt Haus inklusive Garage sichern
Sind Sie auf der Suche nach einem neuen Zuhause mit ausreichend Platz für Ihre Familie? Bei Reservierung einer Doppelhaushälfte vom 01.04. bis zum 30.04.2026 erhalten Sie die Garage im Wert von rund 12.000 Euro von uns dazu. Damit genießen Sie mehr Komfort im Alltag...
Anbieter der Immobilie
Online-ID: 2mc5z5a
Referenznummer: 132862532#EXcPsm
Finde Angebote wie dieses
Hier geht es zu unserem Impressum, den Allgemeinen Geschäftsbedingungen, den Hinweisen zum Datenschutz und nutzungsbasierter Online-Werbung.