

Sparkasse Forchheim in Vertretung der Sparkassen-Immobilien-Vermittlungs-GmbH
Herr Jona Seitz
091 ···
Nr. anzeigenPreise & Kosten
Provision für Käufer
3,57 % inkl. MwSt.
Lage
Eingebettet zwischen Feldern, Wiesen und Mischwäldern liegt die 1000-jährige Stadt im unteren Wiesenttal. Die historische Altstadt wird durch die Marienkapelle, Marktplatz, sehenswerten Fachwerkhäusern, das Wasserschöpfrad und zwei Scheunenviertel geprägt. Geschäfte, Cafes und Gaststätten laden zum Bummeln und Verweilen...
Das Haus
Kategorie
Doppelhaushälfte
Baujahr
1953
Energie & Heizung
Warum sehe ich diese Anzeige? – Du siehst diese Anzeige basierend auf Ihrer Navigation auf unserer Website und den Suchkriterien, die du verwendet hast.
Energieausweistyp
Bedarfsausweis
Gebäudetyp
Wohngebäude
Baujahr laut Energieausweis
1953
Wesentliche Energieträger
Elektroenergie
Gültigkeit
19.09.2025 bis 18.09.2035
Effizienzklasse
G
Endenergiebedarf
205,40 kWh/(m²·a)
Weitere Energiedaten
Haustyp
Massivhaus
Energieträger
Elektro
Heizungsart
Etagenheizung
Details
Objektbeschreibung
Die Doppelhaushälfte mit großem Grundstück wurde ursprünglich 1953 gebaut und liegt in Ebermannstadt.
Das Haus wurde nachträglich mit einer Außenisolierung ausgestattet.
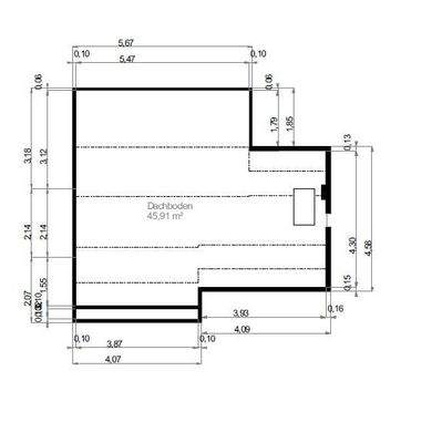
Im Erdgeschoss finden Sie ein offenes Wohn-/Esszimmer, eine separate Küche und ein Badezimmer. Über die Treppe gelangen Sie in das Obergeschoss...
Weitere Informationen
Stichworte
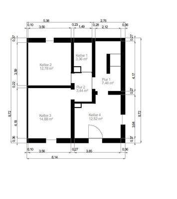
Garage vorhanden, Stellplatz vorhanden, Nutzfläche: 100,35 m², Anzahl der Schlafzimmer: 3, Anzahl der Badezimmer: 2, Anzahl Balkone: 1, Anzahl Terrassen: 1, Bundesland: Bayern
Anbieter der Immobilie
Sparkasse Forchheim in Vertretung der Sparkassen-Immobilien-Vermittlungs-GmbH
Klosterstr. 14, 91301 Forchheim

Online-ID: 2mbve5z
Referenznummer: 1/20/214-214/010879
Finde Angebote wie dieses
Hier geht es zu unserem Impressum, den Allgemeinen Geschäftsbedingungen, den Hinweisen zum Datenschutz und nutzungsbasierter Online-Werbung.