
Evernest GmbH
Jonas Rendler
+49 ···
Nr. anzeigenPreise & Kosten
Provision für Käufer
7.14 inkl. MwSt.
Bei Abschluss eines notariellen Kaufvertrages ist eine Käuferprovision vom Käufer in Höhe von 7.14 % inkl. MwSt. aus dem Kaufpreis fällig.
Abschreibung/Anlage
Denkmalschutz-Afa
Lage
Das angebotene Mehrfamilienhaus befindet sich in zentraler und gut erreichbarer Lage der Großen Kreisstadt Döbeln im sächsischen Landkreis Mittelsachsen.
Die Stadt Döbeln liegt im Mittelsächsischen Hügelland im weiten Talkessel der Freiberger Mulde, etwa gleich weit entfernt von den Metropolregionen Dresden (ca. 50 km)...
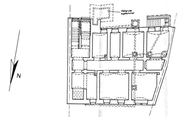
Das Haus
Kategorie
Mehrfamilienhaus
Baujahr
1920
Energie & Heizung
Warum sehe ich diese Anzeige? – Du siehst diese Anzeige basierend auf Ihrer Navigation auf unserer Website und den Suchkriterien, die du verwendet hast.
Energieausweis: für diesen Gebäudetyp nicht notwendig
Weitere Energiedaten
Energieträger
Gas
Details
Objektbeschreibung
Willkommen in diesem gut gepflegten Mehrfamilienhaus mit Potenzial im Herzen von Döbeln!
Das denkmalgeschützte Objekt aus dem Jahr 1920 wurde im Jahr 2000 kernsaniert und wird in 2026 mit einer neuen Heizungsanlage weiter aufgewertet, sodass es sich in einem ansprechenden Zustand mit guter Bausubstanz...
Ausstattung
wirtschaftliche Kennzahlen:
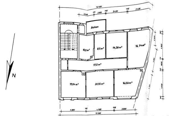
- 477 qm vermietbare Fläche
- 6x 2-Raum Wohnungen
- 2x 3- Raum Wohnungen
- 25.066,80 € Ist- Kaltmiete p.a.
- 4,37 € Durschnittsmiete pro qm
bautechnisch:
- 2000 komplett kernsaniert
- 2016 Erdgeschossumbau von Gewerbe zu Wohnen
- 2018 neue Wasserleitungen im...
Weitere Informationen
Stichworte
Anzahl der Schlafzimmer: 10, Anzahl der Badezimmer: 8, Anzahl Balkone: 3, 3 Etagen
Anbieter der Immobilie
Online-ID: 2mbjm5e
Referenznummer: L-YZCGMNF
Finde Angebote wie dieses
Hier geht es zu unserem Impressum, den Allgemeinen Geschäftsbedingungen, den Hinweisen zum Datenschutz und nutzungsbasierter Online-Werbung.