
Scherf Profi Immobilien Service GmbH
Herr Norbert Scherf
065 ···
Nr. anzeigenPreise & Kosten
Provision für Käufer
provisionsfrei
Lage
Trier-westlicher Stadtteil, gefragter Stadtteil der sich durch viele Investitionen aktuell sehr positiv verändert. Er verfügt über eine gute Infrastruktur und sehr gute Verkehrsanbindung in alle Richtungen. Es sind diverse Einkaufsmöglichkeiten wie z.B. Aldi, Edeka etc. sowie Banken, Ärzte, Apotheke, Gastronomie, Sport- und...
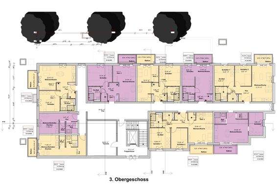
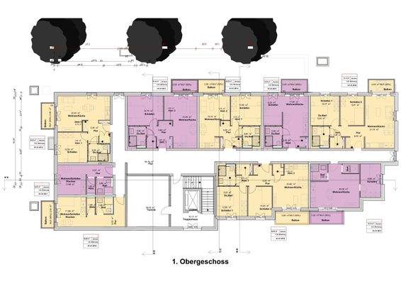
Die Wohnung
Bezug
Ende 2027
Wohnanlage
Energie & Heizung
Warum sehe ich diese Anzeige? – Du siehst diese Anzeige basierend auf Ihrer Navigation auf unserer Website und den Suchkriterien, die du verwendet hast.
Energieausweistyp
Bedarfsausweis
Gebäudetyp
Wohngebäude
Baujahr laut Energieausweis
2025
Wesentliche Energieträger
Fernwärme, Strom
Gültigkeit
27.10.2025 bis 26.10.2035
Effizienzklasse
A+
Endenergiebedarf
29,95 kWh/(m²·a)
Weitere Energiedaten
Energieträger
Elektro, Fernwärme
Haustyp
KfW 40
Heizungsart
Fußbodenheizung
Details
Objektbeschreibung
Modernes barrierefreies Wohnen mit moderner Heiztechnik im KFW 40 QNG Energiesparhaus im neuen Wohngebiet "Grünes Quartier" mit guter Verkehrsanbindung nach
Luxemburg . Helle sonnige Wohnung in modernem KFW 40 QNG Energiesparhaus. Sehr hohe Steuervorteile durch Kombination von degressive Abschreibung und...
Ausstattung
Modernes barrierefreies Wohnen mit moderner Heiztechnik im KFW 40 QNG Energiesparhaus im neuen Wohngebiet "Grünes Quartier" mit guter Verkehrsanbindung nach
Luxemburg . Helle sonnige Wohnung in modernem KFW 40 QNG Energiesparhaus. Sehr hohe Steuervorteile durch Kombination von degressive Abschreibung und...
Preisinformation
1 Tiefgaragenstellplatz, Kaufpreis: 26.500,00 EUR
Weitere Informationen
Sonstiges
Vereinbaren Sie einen Beratungstermin !
Der Energieausweis liegt vor.
Dieser wird dem Interessenten vor dem Besichtigungstermin mit dem Exposé zur Verfügung gestellt.
In Zusammenarbeit mit einem Finanzierungsvermittler sind wir Ihnen gerne bei der Gestaltung Ihrer Finanzierung behilflich. Die...
Anbieter der Immobilie
Online-ID: 2mamn5u
Referenznummer: 24ETNBLOK118
Finde Angebote wie dieses
Hier geht es zu unserem Impressum, den Allgemeinen Geschäftsbedingungen, den Hinweisen zum Datenschutz und nutzungsbasierter Online-Werbung.