INFINA Credit Broker GmbH

Herr Johannes Kurz

Architektonisch hochwertiger Neubau in Top-Lage von Scharnitz! Top 09

€ 555.000
Kaufpreis
83,86 m²
Wohnfläche ca.
3
Zimmer
Finanzierung berechnen mit durchblicker

Der Anbieter dieses Objekts hat gegenüber der AVIV Germany GmbH als Betreiber dieses Online-Marktplatzes erklärt, nicht als Unternehmer im Sinne des § 1 KSchG zu handeln. Die im Verbraucherschutzrecht der Union verankerten Verbraucherrechte (insbesondere Informationspflichten und Rücktritts- bzw. Widerrufsrechte) finden auf den Vertrag zwischen dem Anbieter des Objekts und Ihnen (dem Interessenten) keine Anwendung.

Gewerblicher Anbieter

Der Anbieter dieses Objekts hat gegenüber der AVIV Germany GmbH als Betreiber dieses Online-Marktplatzes erklärt, als Unternehmer im Sinne des § 1 KSchG zu handeln.

AdresseStraße nicht freigegeben
6108 Scharnitz 
Auf Karte ansehen

Preise & Kosten

Kaufpreis € 555.000

Provision für Käufer

19.980,00 € inkl. 20 % USt.

Lage

Das Neubauprojekt an der Innsbrucker Straße 26 befindet sich in zentraler und dennoch ruhiger Lage im Herzen von Scharnitz, einer charmanten Tiroler Gemeinde am Tor zum Naturpark Karwendel.

Scharnitz liegt nur wenige Minuten nördlich von Seefeld und direkt an der bayerischen...

Mehr anzeigen

Die Wohnung

Wohnungslage

Dachgeschoss

Bezug

nach Absprache

  • Bad mit Dusche
  • Loggia
  • barrierefrei, rollstuhlgerecht
  • Böden: Fliesenboden, Parkett
  • Zustand: Erstbezug
  • Weitere Räume: Abstellraum, Wasch-Trockenraum
  • Anschlüsse: Kabelanschluss

Wohnanlage

  • Zustand: Neubau
  • Personenaufzug
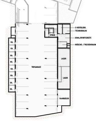
  • 1 Stellplatz: Garage, Außen-Stellplatz

Energie & Heizung

Heizwärmebedarf (HWB)

B

26,00 kWh/(m²·a)

Gesamtenergieeffizienz (fGEE)

A+

0,64

Weitere Energiedaten

Heizungsart

Fußbodenheizung, Luft-/Wasser-Wärmepumpe, Zentralheizung

Details

Objektbeschreibung

Hier einige kurze Informationen zur Immobilie: Die Wohnanlage bietet Platz für 10 großzügige Wohnungen mit ausreichend Platz für Familien. Im Erdgeschoss sind 2 Geschäftslokale situiert die durch die Laubengangsituation optimal Richtung Dorfplatz geöffnet sind. Der Garten ist parkähnlich angelegt und beinhaltet einen modernen...

Mehr anzeigen

Preisinformation

1 Stellplatz
1 Garagenstellplatz

Weitere Informationen

Stichworte
Stellplatz vorhanden, Tiefgarage vorhanden, Fahrradraum, Anzahl der Badezimmer: 1, Anzahl der separaten WCs: 1, Anzahl Loggias: 1, Balkon-Terrassen-Fläche: 10,49 m², Bundesland: Tirol, 2 Etagen

Sonstiges/Wohnen: seniorengerechtes Wohnen

Anbieter der Immobilie

Partner

INFINA Credit Broker GmbH

im Durchschnitt  5,00  Sterne
(bei 1 Bewertungen)

Brixner Straße 2/4, 6020 INNSBRUCK

Geschäftszeiten
user

Herr Johannes Kurz

Dein Ansprechpartner

Anbieter-Profil Anbieter-Impressum

Online-ID: 2ma685c

Referenznummer: 41448

Finde Angebote wie dieses

imageimageimage

Günstige Immobilienfinanzierung einfach online berechnen

Persönliches Angebot berechnen

Hier geht es zu unserem Impressum, den Allgemeinen Geschäftsbedingungen, den Hinweisen zum Datenschutz und nutzungsbasierter Online-Werbung.