

Sterling Immobilien
Herr Maik Sterling
015 ···
Nr. anzeigenPreise & Kosten
Provision für Käufer
Die Käufer-Provision beträgt 3,57 % vom Kaufpreis inkl. MwSt.
Lage
Aschersleben, die älteste Stadt Sachsen-Anhalts, liegt am Nordrand des Harzes und gehört zum Salzlandkreis. Die Stadt profitiert von einer guten Verkehrsanbindung durch die A36 sowie die Bundesstraßen B6 und B185. Dank des gut ausgebauten Bahnnetzes sind Magdeburg, Halle (Saale) und weitere Städte schnell...
Das Haus
Kategorie
Doppelhaushälfte
Baujahr
1940
Energie & Heizung
Warum sehe ich diese Anzeige? – Du siehst diese Anzeige basierend auf Ihrer Navigation auf unserer Website und den Suchkriterien, die du verwendet hast.
Energieausweistyp
Bedarfsausweis
Gebäudetyp
Wohngebäude
Wesentliche Energieträger
Gas
Gültigkeit
14.03.2025 bis 13.03.2035
Effizienzklasse
H
Endenergiebedarf
314,00 kWh/(m²·a)
Weitere Energiedaten
Energieträger
Gas
Heizungsart
Zentralheizung
Details
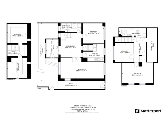
Objektbeschreibung
Diese individuell gestaltete Doppelhaushälfte liegt in ruhiger, aber zentraler Lage von Aschersleben. Ursprünglich 1913 als Stadtbauernhaus erbaut, wurde sie 1970 von einem Bauingenieur und Tischlerpaar mit viel handwerklichem Geschick umgebaut. Das Ergebnis ist ein besonderes Zuhause mit durchdachtem Grundriss - ideal für...
Ausstattung
- ca. 570 Quadratmeter Grundstücksgröße
- ca. 110 Quadratmeter Wohnfläche
- Keller
- Nebengelass
- Dach (Dachziegel von 1975 und 2005 neu lackiert; Dämmung 2015)
- Heizung (Therme Baujahr 2020)
- Schornstein wurde heruntergesetzt
- Garten
- Terrasse
- Garage (2,20 Meter Breite)
- Fenster, doppelt...
Weitere Informationen
Sonstiges
Alle Daten in diesem Exposé beruhen auf Angaben des Eigentümers der Immobilie. Die Angaben zum Objekt sind von uns, Sterling-Immobilien.de, mit großer Sorgfalt zusammengestellt worden. Wir übernehmen keine Haftung für die Angaben des Angebotes, welche uns der Verkäufer/Anbieter übermittelt hat. Irrtümer bleiben...
Dokumente
Anbieter der Immobilie
Sterling Immobilien
Ahornring 21, 06467 Hoym

Online-ID: 2m9bm5x
Referenznummer: SI-1002
Finde Angebote wie dieses
Hier geht es zu unserem Impressum, den Allgemeinen Geschäftsbedingungen, den Hinweisen zum Datenschutz und nutzungsbasierter Online-Werbung.