
IMMOBILIEN GRAZIADEI
Herr/Frau Dipl.-Ing. (FH) Andreas Grazidei
079 ···
Nr. anzeigenPreise & Kosten
Kaution
3 Kaltmieten
Warum sehe ich diese Anzeige? – Du siehst diese Anzeige basierend auf Ihrer Navigation auf unserer Website und den Suchkriterien, die du verwendet hast.
Lage
Die Wohnung liegt in einer gefragten Bestlage der Innenstadt. Einkaufsmöglichkeiten, Restaurants, Cafés sowie kulturelle Angebote befinden sich in unmittelbarer Nähe und sind fußläufig erreichbar.
Auch die Anbindung an den öffentlichen Nahverkehr ist optimal.
Die Wohnung
Kategorie
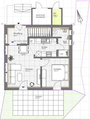
Terrassenwohnung
Wohnungslage
Erdgeschoss
Bezug
01.05.2026
Wohnanlage
Energie & Heizung
Warum sehe ich diese Anzeige? – Du siehst diese Anzeige basierend auf Ihrer Navigation auf unserer Website und den Suchkriterien, die du verwendet hast.
Energieausweistyp
Bedarfsausweis
Gebäudetyp
Wohngebäude
Baujahr laut Energieausweis
1935
Wesentliche Energieträger
Luft
Gültigkeit
seit 16.10.2023
Effizienzklasse
B
Endenergiebedarf
54,90 kWh/(m²·a)
Weitere Energiedaten
Heizungsart
Fußbodenheizung, Luft-/Wasser-Wärmepumpe, Zentralheizung
Details
Objektbeschreibung
Diese neu geschaffene Wohnung präsentiert sich nach einer umfassenden Kernsanierung in neuwertigem Zustand und bietet ideale Voraussetzungen für einen Erstbezug. Das Gebäude ist vollständig und nachhaltig erneuert. Dabei entstand ein modernes Wohnkonzept, das durch zeitgemäße Haustechnik, hochwertige Materialien und eine...
Ausstattung
-Moderne Video-Klingelanlage
-Teilweise integrierte Einbauleuchten
-Offener Grundriss mit hoher Raumhöhe
-Bodengleiche Terrassentüren vom Wohn- und Schlafzimmer
-Überdachte Süd-Terrasse
-Neue Einbaukueche inklusive Geräte
-toller Garten nach Süden
- zwei Zugänge
- extra Abstellraum
-troz zentraler...
Weitere Informationen
Sonstiges
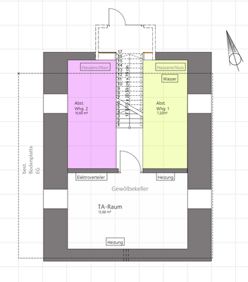
Info: Anzahl Etagen: 1
Dies ist die Wohnung im Erdgeschoss. Im selben Haus befindet sich noch eine weitere Wohnung, die sich über das 1. Obergeschoss und das Dachgeschoss erstreckt. Hierzu gibt es ebenfalls eine Stellenanzeige, sofern diese nicht bereits vergeben ist.
Dokumente
Anbieter der Immobilie
IMMOBILIEN GRAZIADEI
Hindenburgstr. 12, 74653 Künzelsau

Online-ID: 2m8wq5r
Referenznummer: 926
Finde Angebote wie dieses
Hier geht es zu unserem Impressum, den Allgemeinen Geschäftsbedingungen, den Hinweisen zum Datenschutz und nutzungsbasierter Online-Werbung.