
Evernest GmbH
Sahra Holst
+49 ···
Nr. anzeigenPreise & Kosten
Provision für Käufer
3.57 inkl. MwSt.
Bei Abschluss eines notariellen Kaufvertrages ist eine Käuferprovision vom Käufer in Höhe von 3.57 % inkl. MwSt. aus dem Kaufpreis fällig.
Lage
Der Nordosten Schleswig-Holsteins ist bekannt für seine vielfältige und wunderschöne Natur mit malerischen Buchten und Stränden, grünen Hügellandschaften mit leuchtenden Rapsfeldern sowie zahlreichen Naturschutzgebieten mit einer reichen Flora und Fauna. Inmitten dieser einzigartigen Naturlandschaft entsteht das Ostsee-Resort...
Das Haus
Kategorie
Einfamilienhaus
Baujahr
2019
Energie & Heizung
Warum sehe ich diese Anzeige? – Du siehst diese Anzeige basierend auf Ihrer Navigation auf unserer Website und den Suchkriterien, die du verwendet hast.
Energieausweistyp
Verbrauchsausweis
Gebäudetyp
Wohngebäude
Effizienzklasse
B
Endenergieverbrauch
69,28 kWh/(m²·a) - Warmwasser enthalten
Weitere Energiedaten
Energieträger
Gas
Details
Objektbeschreibung
Willkommen in Ihrem gemütlichen Ferienhaus in Kappeln! Dieses hochwertige und modern eingerichtete Haus bietet Ihnen alles, was Sie für entspannte Urlaubstage benötigen. Die Infrarot-Sauna lädt nach ausgiebigen Strandspaziergängen zum Entspannen ein. Genießen Sie die frische Meeresluft auf Ihrer Terrasse oder nutzen Sie den...
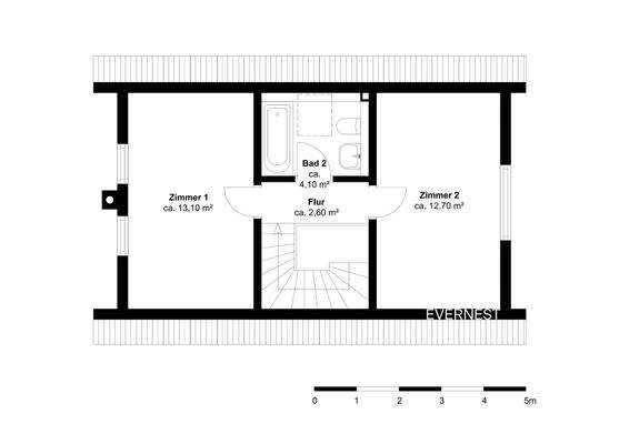
Ausstattung
- 2 Schlafzimmer
- Einbauküche
- Kaminofen
- Wannenbad im Obergeschoss
- Duschbad mit Infrarot-Wärmekabine im Erdgeschoss
- Fußbodenheizung im Erdgeschoss
- Terrasse
- 1 Pkw-Stellplatz
- Abschließbarer Fahrradschuppen
Das Haus befindet sich in der Ferienvermietung und wird inklusive Inventar...
Weitere Informationen
Stichworte
Stellplatz vorhanden, Anzahl der Schlafzimmer: 2, Anzahl der Badezimmer: 2, Anzahl Terrassen: 1, 2 Etagen
Anbieter der Immobilie
Online-ID: 2m8wd5d
Referenznummer: L-AA6HHDD
Finde Angebote wie dieses
Hier geht es zu unserem Impressum, den Allgemeinen Geschäftsbedingungen, den Hinweisen zum Datenschutz und nutzungsbasierter Online-Werbung.